51N4E设计的布达岛艺术家工作室和展览空间
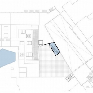
简介:建筑设计:51N4E 项目地址:布达岛 这是由51N4E设计的布达岛艺术家 工作室 和 展览空间 。场地原本是布达岛上仅剩的一个纺织厂,现被改造。纺织厂位于城中心街区,主要采取了两个措施。 建筑师在进深较 ...
|
建筑设计:51N4E
|
已有 0 人参与
会员评论
相关分类
最热文章
最新文章









