maisr arquitetos设计的里斯本鸟类观察站
简介:设计者:maisr arquitetos 项目地点:葡萄牙 里斯本 建筑面积:47000平方米 竣工时间:2012年11月 图片提供:maisr arquitetos 葡萄牙的里斯本区EVOA环境监测中心是由当地设计公司maisr arquitetos设计的,位 ...
|
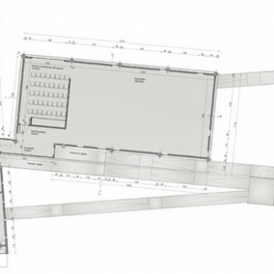
设计者:maisr arquitetos 葡萄牙的里斯本区EVOA环境监测中心是由当地设计公司maisr arquitetos设计的,位于一片广阔的玉米地中,那里是很多鸟类栖息的地方。博物馆和鸟类观察点这座大型鸟巢就在这里筑成,设计采用最原始的结构,沿着一系列坡道逐渐“编织”起来。整个建筑的骨架由木梁、木板和饰面沿着通道编织成精致的网格结构,巨大的基础和成尖角的部装饰使人想起自然界中稻草编制品和木栅栏的形象。建筑分为两个部分,按照不同的网格结构排列,一侧包括了中间无柱的展览空间和一个小型会议室;另一侧有尖角的空间内包括了办公室、自助餐厅和瞭望台。人们在巨大的玻璃之后可以对鸟类进行观察研究。
|
已有 0 人参与
会员评论
相关分类
最热文章
最新文章









