建筑时空 首页 建筑业界 建筑要闻 查看内容

gonzalez moix arquitectura设计的秘鲁首都利马一座餐厅

2012-11-6 00:00| 发布者: ccbuild| 查看: 499| 评论: 0

简介:设计者: gonzalez moix arquitectura 向目地点:秘鲁 利马 gonzalez moix arquitectura设计的秘鲁首都利马一座餐厅。建筑用地两侧被高高的混凝土墙围住,墙上刻有一条条成角度的凹槽,墙下的葡萄藤正在慢慢 ...

设计者: gonzalez moix arquitectura
向目地点:秘鲁 利马

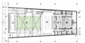
gonzalez moix arquitectura设计的秘鲁首都利马一座餐厅。建筑用地两侧被高高的混凝土墙围住,墙上刻有一条条成角度的凹槽,墙下的葡萄藤正在慢慢向上攀爬。厚重的混凝土梁在两墙之间伸展,随机的相互交错,竖向的克尔顿不锈钢板将一个玻璃盒子围在中间,形成了更为私密的就餐空间。楼下则仅仅由玻璃维护,形成透明的就餐过渡区,两侧是露天走廊和楼梯。室外庭院由温暖的木质材料作为地板,中间铺设了地毯。最后面的部分是厨房、小酒吧、一些服务设施和两个餐厅包间。

收藏 邀请

鲜花

握手

雷人

路过

鸡蛋

相关阅读

已有 0 人参与

会员评论

返回顶部