LIAG architecten建筑事务所设计荷兰彩色体育综合体
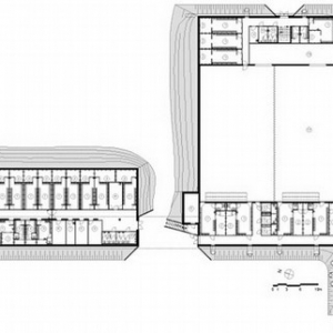
简介:这是由荷兰事务所LIAG architecten设计的位于荷兰埃因霍温的体育综合体项目,打造标志性是这个建筑形状背后的驱动因素,项目在实现基本功能的基础上还要保持与周围学校相同的美学语言。为了低调,景观被抬高,环绕结 ...
|
这是由荷兰事务所LIAG architecten设计的位于荷兰埃因霍温的体育综合体项目,打造标志性是这个建筑形状背后的驱动因素,项目在实现基本功能的基础上还要保持与周围学校相同的美学语言。为了低调,景观被抬高,环绕结构周围,形成一种自然的互动的基座,这个结构为空间提供被动保温,同时也形成一种实际的可接近的人类尺度。室内包含几个服务功能,和巨大的运动场。动感的彩色条带覆盖建筑表皮,以代表不同的体育项目,圆形的建筑剖面形式更加突显了建筑的生动可爱性。透明的表面形成良好的太阳吸收,同时夜晚还能展示出内部的活动。
英文名称:Botenlaan sports complex
|
已有 0 人参与
会员评论
相关分类
最热文章
最新文章









