masao yahagi architects建筑事务所设计日本津屋崎町住宅
简介:这是由日本事务所masao yahagi architects设计的一个住宅和艺术工作室项目,巨大的室内体量,加上高大的天花板形成了这个项目的相对大规模性。表皮包含垂直的部分,同时包含双曲线,它开始于中间,继而向内向外弯曲 ...
|
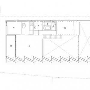
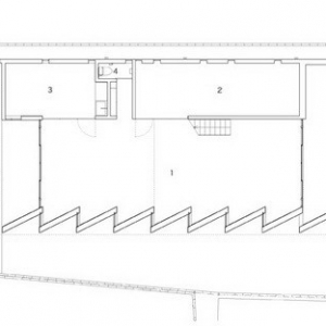
这是由日本事务所masao yahagi architects设计的一个住宅和艺术工作室项目,巨大的室内体量,加上高大的天花板形成了这个项目的相对大规模性。表皮包含垂直的部分,同时包含双曲线,它开始于中间,继而向内向外弯曲。一系列扭曲的元素延展于建筑的整个长度,它们在由统一的变形导致的空洞中形成窗户结构,并受到屋顶线条的保护。柔和的光线可以进入到艺术工作室室内。而夜晚从室内投射出的人工照明则展示出立面上弯曲的表皮。
英文名称:House of coast work Tsuyazaki
|
已有 0 人参与
会员评论
相关分类
最热文章
最新文章









