Paulo Mendes da Rocha & METRO设计的巴西维多利亚博物馆
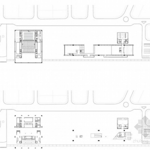
简介:设计者:Paulo Mendes da Rocha 地点:巴西 ES 维多利亚, 项目:2008 广场总面积:26500平方米 博物馆总面积:8,500平方米 剧院总面积:14,000平方米 Paulo Mendes da Rocha & METRO设计的巴西维多利亚 ...
|
设计者:Paulo Mendes da Rocha
Paulo Mendes da Rocha & METRO设计的巴西维多利亚剧院博物馆综合体,位于巴西维多利亚的一座小岛上,。建筑师设计了一个悬吊的大门将山地自然景观和城市景色框住,在历史文脉和现代建筑元素之间寻求平衡。外围设有一个巨大的年夜广场,项目建成后将用来举行戏剧演出和户外展览,室内还设有咖啡厅和书店,cais das artes将成为维多利亚市的文化中心。3000平方米的展厅和可以或许容纳1300听众的陈述厅将用来举行包含集会、演出和舞剧在内的多种活动。
|
已有 0 人参与
会员评论
相关分类
最热文章
最新文章









