成都市南部副中心科技创业中心
|
项目概况 该项目位于成都市高新区天府大道北段西侧,是一个智能化、生态化的大型多功能办公园区。这是一个对业主任务书要求、场地现状、场地周边交通情况及城市发展预期进行全面理性分析的设计,构思不搞附会式的隐喻及心目中固有的空间定式,坚持以“现代、简约、优雅”的方式,营造“花园”的园区环境,融入城市。项目按功能要求分解成若干幢建筑,并形成建筑群,每幢建筑都体现出新颖性及连贯性并形成整体,体现出互补性和同一性,使建筑以整体的标识方式融入成都的自然和人文环境。
设计特色 基于视觉规律的多角度分析和设计所希望达成的场所特征要求限制,设计确立了“花园”环境中的总体布局,即建筑单体呈花瓣状向心布局,外高内低;每幢建筑与其环境相互交融,建筑形体的拓扑相似体现了同一性原则,从而凸现了建筑群的整体性及标志性。园区内的道路系统不仅仅着眼于交通功能,同时还与建筑的布局共同构成景观的视觉元素,体现了功能效率与景观环境视觉美学的完美结合。整体建筑群因其放射状布局,与城市空间得到极好的视觉交融,人们可通过建筑单体之间的空间与周围城市空间,互动式的感知不同场所的特质。
4号楼二层平面图
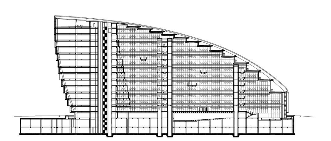
4号楼剖面图
七号楼东入口标高平面图
七号楼东西向剖面图
总平面图 建筑形式 在总体构思同一性、整体性原则的前提下,建筑形式共分为3种,即①主体办公楼建筑;②下沉式服务餐厅;③配套会议及接待中心。主体办公楼平面为同一相似的马蹄形,底层为大会议室及中型会议室,二层为抬高的主要入口门厅与可控调节通风采光的中庭,内中庭空间开阔明亮,观光电梯和大跨度天桥穿梭其间,容纳了办公建筑中交通、展览、休息、交流的多元化可能性功能,三层以上为办公区,其建筑形体的比例推敲及控制,遵循“现代、简约、优雅”的几何学原则,从而呈现出内在的几何逻辑美学关系,给人以轻松平和耐人寻味的感受;服务餐厅是带有下沉式庭院的覆土建筑,它满足建筑群景观及环境的要求,不仅减少了自身体量,给平地景观带来了起伏变化,而且下沉庭院很好的避开了城市周边的环境噪声,形成了独特宜人的空间氛围;配套会议及接待中心,基于功能及服务半径的考虑被置于群体的核心位置,下两层为会议接待中心,上三层为办公区,它的形式考虑到完成度的控制,仍以几何学的方法控制,表皮为铝合金管编织而成的传统竹帘效果,是园区的视觉焦点。
技术创新 结合成都气候特点、节能环保理念、建筑维护需要及景观视线要求,设计以独特的立面构造和幕墙节点传递建筑的优雅意象,通过理性的比较推敲,1~7号楼采用拟合自然不规则图案取得形式与功能的统一,即以树枝剪影图案及竹帘意象作为外围护的第二表皮。项目中的创新设计有三项获得了国家专利。
工程档案 设计团队: 中国建筑西南设计研究院有限公司 钱方、刘艺、冯远 保罗·安德鲁建筑事务所 Paul Andreu、Mario Flory 占地面积:41889㎡ 建筑面积:375927㎡ 地上面积:222710㎡ 容积率:1.0 建筑高度:6.3~64.9m 建筑层数:地上2~14层、地下1~2层 绿地率:41% 设计内容:办公楼、会议接待中心、公共餐厅及其景观、光彩工程、幕墙、室内装饰 项目业主:成都市兴南投资有限公司 竣工日期:2008年3月 单位造价:5000元/㎡左右(含景观、照明、二装) 图片来源:中建西南院 |
会员评论















