潜艇基地改造生活区
|
二战后遗留在此的旧潜艇基地,经过河流的冲刷,从加仑河港口的水平面慢慢升起。设计师要把基地,以及周围零散的潜艇装备部件改造成公寓。基于海平面高度的限制,设计师将地下停车场转移到地面中心区域,并将底部两层连通,二层设开放花园,三个公寓建筑体块环绕而设,正立面提供服务设施,空间与街道在视觉上产生对视。 In the Garonne river port, Bassins à flot, Bordeaux. As though washed up here by nearby waters, rises the hulk of the World War II submarine base. Beside us, other remains of the shipwreck: some small constructions that have to be integrated into the project. The water table is very high.We cannot excavate to build car parks. We build two stories right across the plot, introducing the car parks at the centre and arranging dwellings around them, with services along the front. In this case, the floor is porticoed, drawing the perspective from the street towards the old submarine base. Three volumes are arranged on this platform. ▼远眺建筑,architecture from the distance
▼建筑外立面,surface
▼二层顶部开放平台,the open platform on the top of the second floor
▼公寓内侧庭院,the other side of the dwelling
▼模型图,model
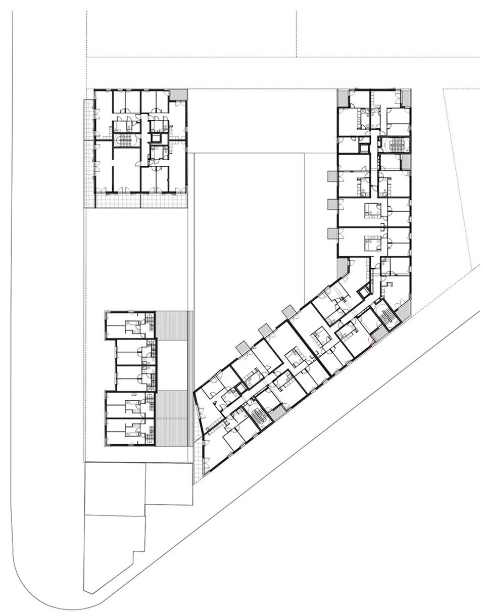
▼一层平面图,the first floor plan
▼二层平面图,the second floor plan
▼三层平面图,the third floor plan
▼四层平面图,the forth floor plan
▼五层平面图,the fifth floor plan
▼六层平面图,the sixth floor plan
▼七层平面图,the seventh floor plan
▼屋顶平面,the roof floor
▼剖面图,section
|






















