日本一座有着大波浪屋顶的幼儿园 toranoko nursery
简介:在距离富士山不远的山梨县,有一个宁静的小镇。来自Takashige Yamashita Office (TYO)建筑事务所的的建筑师在那里设计了一个有着大波浪屋顶的幼儿园。这所幼儿园除了照顾当地的娃娃们,还起到了一个社区聚集场所的功 ...
|
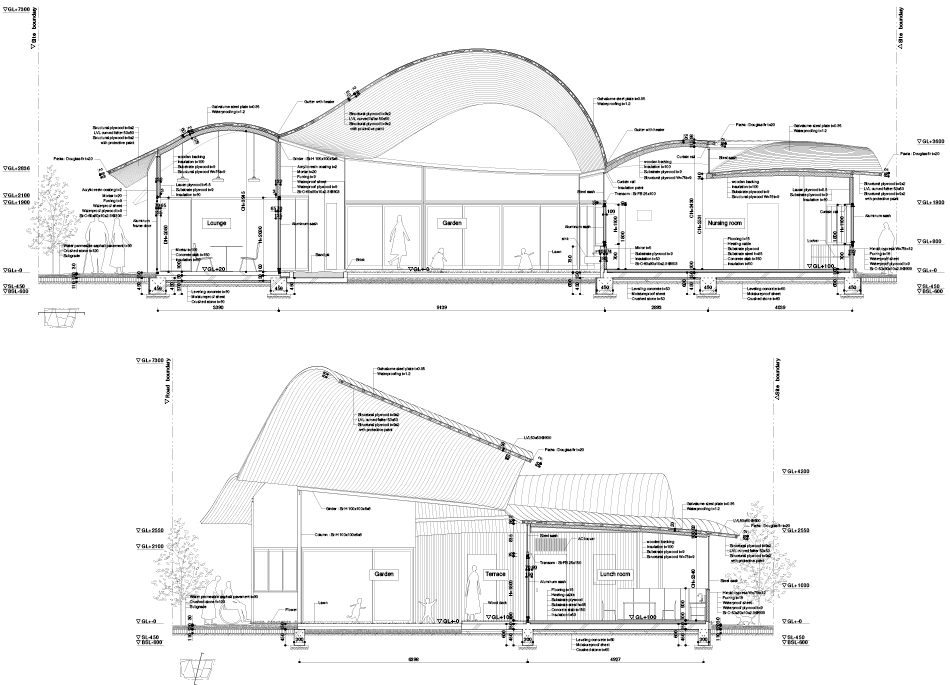
在距离富士山不远的山梨县,有一个宁静的小镇。来自Takashige Yamashita Office (TYO)建筑事务所的的建筑师在那里设计了一个有着大波浪屋顶的幼儿园。这所幼儿园除了照顾当地的娃娃们,还起到了一个社区聚集场所的功能。建筑师将其描述成“就像一颗村口的大树”
原来在幼儿园用地的周围还有几处老年活动中心,幼儿园位于其核心位置,于是建筑师希望这里的公共空间除了孩子们还能为更多人服务。于是在入口处的屋顶设计成了一个非常夸张的弧度,好像一个被风吹起来的帐篷,左右跨度达到10米。起伏的弧形屋顶在不同的位置被“撕”开一个口子,让阳光可以补充到室内。 果真是大树底下好乘凉,相信即使下雨天,孩子们也可以到室外做游戏了~
|





















