上海VILAB健身房
简介:VILAB健身房位于上海市中心K11的23楼。来自莫雷诺的设计让你体验到从未感受过的健身氛围,让你置身于未来科技之中。这也正是莫雷诺的设计理念:运用冰蓝色的LED灯光分割功能区域,制造气氛,打造出专属于VILAB健身房 ...
|
VILAB健身房位于上海市中心K11的23楼。来自莫雷诺的设计让你体验到从未感受过的健身氛围,让你置身于未来科技之中。这也正是莫雷诺的设计理念:运用冰蓝色的LED灯光分割功能区域,制造气氛,打造出专属于VILAB健身房的未来设计。 ▽入口区域
▽入口休息区
▽入口台后的拳击区
▽重力区,由玻璃围合,可以看到其他区域
▽团操区
健身房的布局三面环绕着玻璃幕墙,拥有着得天独厚的地理位置将市中心的夜景尽收眼底。 ▽透过玻璃幕墙尽享城市夜景
在材料方面健身区域采用吸震、防滑、隔音的橡胶垫,公共区域采用天然混凝土板和蓝色LED灯光搭配,粗犷的材质赋予了健身房一股强烈的能量。 ▽更衣区效果图
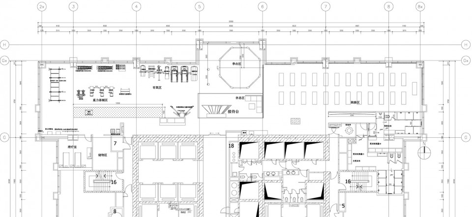
▽平面图
▽接待区细部
|

















