建筑时空 首页 建筑作品 新建筑 查看内容

巴黎Monts Et Merveilles集合住宅 by Jean Bocabeille Architecte

2016-6-10 08:51| 发布者: 新建筑| 查看: 2056| 评论: 0 |来自: 网络

简介:这几座小山似的公寓位于巴黎Clichy-Batignolles地区,是一个集居住、宗教、商业及医疗等配套设施的小型综合体。这里曾经是铁路旁一处被遗弃的地块,随着城市住房量的供应不足,如今这里被重视并加以改造,成为了巴黎 ...

 

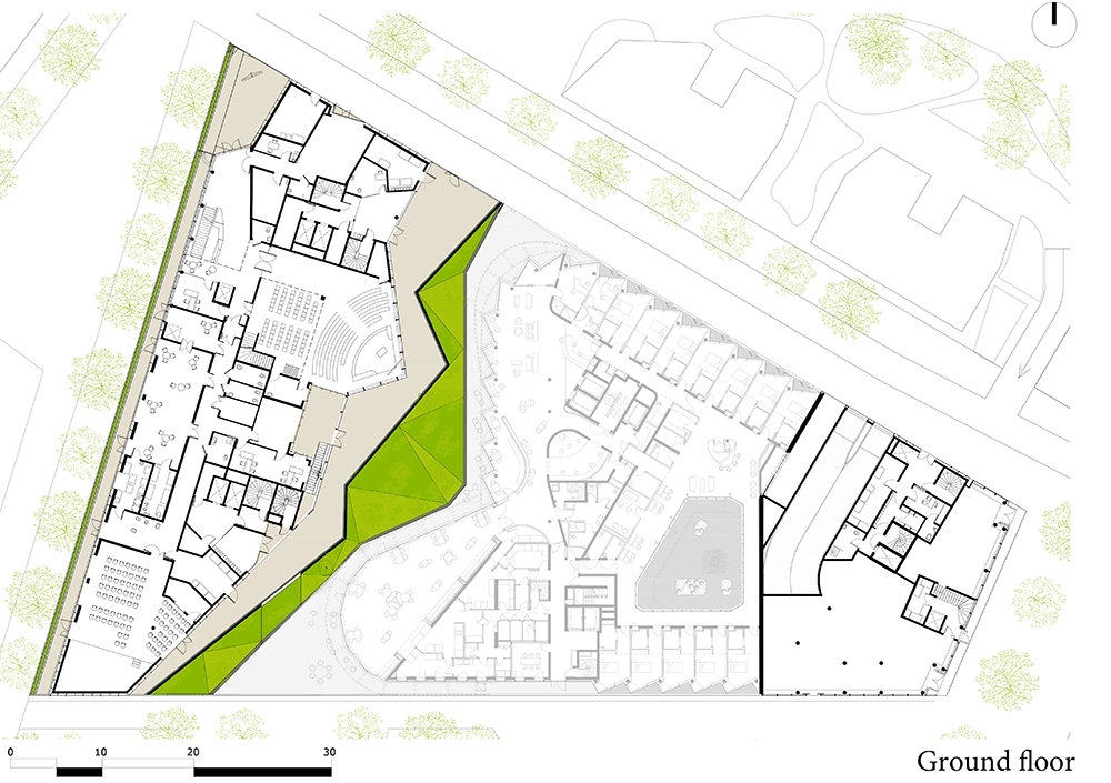
这几座小山似的公寓位于巴黎Clichy-Batignolles地区,是一个集居住、宗教、商业及医疗等配套设施的小型综合体。这里曾经是铁路旁一处被遗弃的地块,随着城市住房量的供应不足,如今这里被重视并加以改造,成为了巴黎城的一个重要组成部分。

 

 

Monts Et Merveilles综合社区主要包含三栋建筑,一栋包含86户私人住宅,一栋包含46个社会公租房,还有一栋是容纳129个床位的医疗中心。其他的公共设施如商业、宗教中心等位于公寓的底层。

如此多的社会属性集中到一处,真是考验社会和谐与否的一到考试题啊!

 

收藏 邀请

鲜花

握手

雷人

路过

鸡蛋

相关阅读

返回顶部