“云雾”缭绕的住宅
简介:由佐野文彦设计的云雾住宅,该住宅的户主是一个和服的爱好者,所以设个住宅主要也作为一个和服的研究和染制的工作室。同时也提供了一个沟通和交流的场所,以接待来到这里的留学生。 建筑所在的地 ...
|
由佐野文彦设计的“云雾”住宅,该住宅的户主是一个和服的爱好者,所以设个住宅主要也作为一个和服的研究和染制的工作室。同时也提供了一个沟通和交流的场所,以接待来到这里的留学生。
建筑所在的地块是一个巨大的广场(9100*9100),这个地块从北往南是一个向上升起的斜坡。由于倾斜的地面,所以私人空间被安置于建筑的北部,以获得较好的视野。
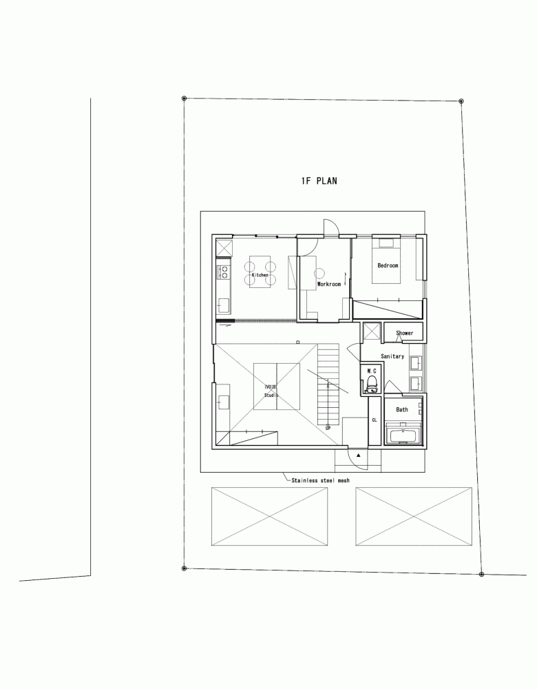
一个开放式的工作室与厨房相连,由此可以让户主举办大派对。考虑到客人将来会变老、行动不便,她的卧室、书房和其他基础设施均布置在一层。而其他单人房、起居室和日式房间均布置在二层。此外,在起居室还能欣赏到美丽的富士山风景。
该项目最大的特点是包围建筑外部的不锈钢网。通过创建这个建筑外部的空间,使得外面难以窥见室内情景,大大提升了建筑的安全性和隐私性。
这些不锈钢网产生的云纹图案,使得人们即使身处室内,也仿佛是置身室外。
风的吹拂,光线强度、角度的变化,使得不锈钢网上的云纹图案的千变万化,也使得人们对这栋房子的印象不断变化。在这里,人们可以清楚的感受到时间、季节、气候的变迁。
↑一层平面
↑二层平面
↑剖面图1
↑剖面图2 项目信息建筑事务所:文彦佐野 地点:日本,东京,东久留米市 项目负责人:文彦佐野,现象工作室 施工:TANK, DESSENCE 面积:144平方米 年份:2014 摄影:Daisuke Shimokawa /Nacása&Partners Inc 本文由“建筑学院”译自 ArchDaily ,仅供学习探讨。 |
已有 0 人参与
会员评论





































