普瑞特学院 希金斯大厅 Pratt Institute Higgins Hall Insertion by steven holl
|
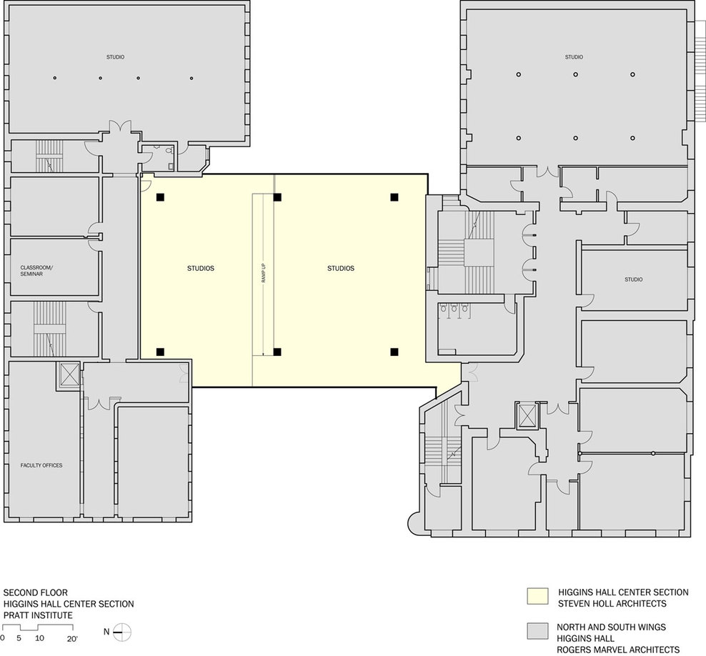
Ssteven Holl设计的新的希金斯大厅(Higgins Hall Insertion)中心部分像一插入物,从周围两座历史地标建筑中脱颖而出。南北两侧翼建筑的波纹板并不呈直线排列,伸入一新的玻璃部分内,相交于中心的一“不和谐区域”,这是该学院的新入口。
两座砖石建筑与新的玻璃插入物一起,形成了一个“H”形。朝东和朝西的两个大厅为再利用红砖铺置,这些红砖是从1996年发生的大火中拯救出来的。朝东的大厅可以眺望内部建筑的绿色院子,而朝西的大厅则成为圣詹姆斯建筑(St. James)的前厅。玻璃中心从红砖底座上拔地而起,由六根混凝土浇注立柱支撑。
这些敦实的横梁和立柱从加拿大制造,形成了石头状的骨架,U状的建筑玻璃板配有半透明白色的绝缘,表面灼灼发光。这一表面被不和谐区域的玻璃截断,区域与内部的斜坡一线排列,使得南北观景更为方便。非直线排列可以从不和谐区域呈现出来,该区域变化多样,因为排列呈垂直向移动。
一层为1.27cm(1/2″),二层为50.8cm(1’8″),三层为144.78cm(4’9″),四层为195.58cm(6’7″)。因此,未对准有手指大小,也有一人高的尺寸。两层的天空灯包括两种灯饰,标志着中心侧翼建筑的顶部。南北的灯饰如同不和谐音弦弹奏出和谐的声音似的。
中心重建可以使建筑学院在Thomas Hanrahan主任的指导下进行新的安排。南北侧翼建筑首次从功能上联系起来,学院有了独立的突出的入口和中心入口大厅。新功能空间包括:新的设计工作室空间,教室和媒体办公室,库恩(Leo Kuhn)入口/接待区,带数字投影座椅的礼堂,新的罗伯特西吉尔(Robert H. Siegel)建筑画廊。在汤姆·斯库特(Tom Schutte)院长的带领下,通过与罗杰斯-马维尔建筑事务所的合作,凭借罗伯特·西尔曼建筑联合公司的技艺,一所伟大的建筑式样的学院一定会在夜间闪烁光辉。(文字参考:areachina)
Pratt Institute 普瑞特学院在1887年成立,是一所相当大型的专业艺术与设计学院,提供了相当多种的课程主修,有25英亩校地在美国东岸纽约布鲁克林。Pratt Institute 普瑞特学院与其他两所着名学院FIT流行设计学院Fashion Institute of Technology、帕森设计学院Parsons School Of Design并列为『三大艺术设计学院』许多海外学子,都争相远道前来求经。 Pratt Institute 普瑞特学院一共有四大学院, 第一是建筑学院(School of Architecture), 第二是艺术与设计学院(School of Art & Design), 第三是人文学院(School of Liberal Arts & Sciences),第四是信息与图书馆科学学院(School of Information & Library Science),另外还有一所继续及专业进修中心(Center for Continuing & Professional Studies)。 Pratt Institute 普瑞特学院另一校区位在曼哈顿Lafayette街道上的校区,在地理位置上是十分靠近苏活区(Soho),学生们会在一栋建筑叫做Puck大楼上课,这座教学大楼目前只给主修媒体传达设计学系 (COMD) 的研究生上课使用在此区上课的学生们可以就近到附近较具有特色的地方晃晃,例如:金融交易中心的华尔街(Wall Street)、文化气息浓厚的格林威治村(Greenwich Village)、想体验异国风情的小义大利(Little Italy)、观看群星云集着名的舞台剧及歌剧的百老汇(Broadway)、若是思念家乡口味的唐人街(Chinatown)等,都是种选择,在这裡,也可以就近到纽约附近的城市游玩,像是华府(Washington, D.C.)、波士顿(Boston)、费城(Philadelphia)、大西洋城(Atlantic City)等。 该校全校学生约有4600多人,大学部学生居多,师资约有900人。Pratt Institute 普瑞特学院的学生来自世界各地,由于国际学生占了普瑞特艺术学院 Pratt Institute的学生数约20%左右,因此Pratt Institute 普瑞特学院提供ESL课程班,并且采用小班制教学,让海外学生可得到个别辅导、照顾而Pratt Institute 普瑞特学院的国际学生办事处,从旁协助国际学生适应新的大学生活、文化、环境等,是个具有国际化观点的学府之一。 Pratt Institute 普瑞特学院目前有大学部及研究所,并以建筑设计系,工业设计系,和沟通设计系的优良设计教育系统享誉于美国。
|





































