大阪IWM住宅 | by Urban Architecture Office
简介:日本建筑事务所Urban Architecture Office在大阪市区设计建造了一座“瘦高”的住宅——IKM住宅。设计满足了业主在高密度城区中对私密性的要求,同时在包围式的建筑群中创造了视线连接。首层的住宅入口为住户提供了一 ...
|
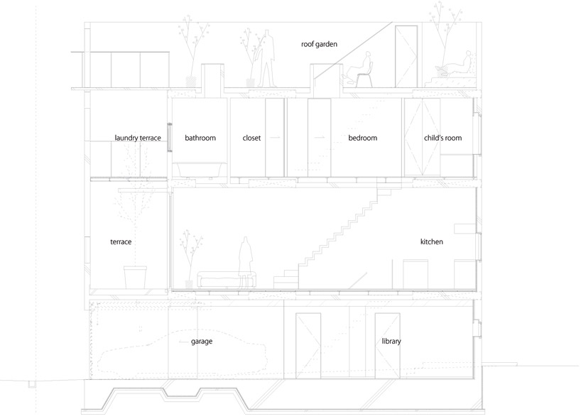
日本建筑事务所Urban Architecture Office在大阪市区设计建造了一座“瘦高”的住宅——IKM住宅。设计满足了业主在高密度城区中对私密性的要求,同时在包围式的建筑群中创造了视线连接。首层的住宅入口为住户提供了一个私密而谨慎的通路,它和开放的车库门相连,车库作为一个穿透性的开口介于室内外之间。一道玻璃隔墙在首层创造了一个温控工作间,住户可以在这里边工作边眺望街景。二层的厨房、餐厅和起居室围绕一个户外天井排列,天井被外墙部分包裹,专门设计的隔墙屏蔽掉了周边视线。大小、方向和高度不一的小窗口引入自然光线,同时为住户提供了丰富的观景角度。户外露台继续向上叠加,最终到达无遮挡的屋顶,直接与天空相连。
|
























