聪明的建筑师将一块超大的岩石变成了观景台
简介:随着农村住房需求的增加,越来越多的人正在向风景壮丽的山区迁移。 石头屋所坐落的区域也是以这种方式发展的农村。尤其是其山区的发展为其最大的优势,既保证了一个开放的高水准建筑, ...
|
随着农村住房需求的增加,越来越多的人正在向风景壮丽的山区迁移。
石头屋所坐落的区域也是以这种方式发展的农村。尤其是其山区的发展为其最大的优势,既保证了一个开放的高水准建筑,同时不会受到南部自然光的干涉。
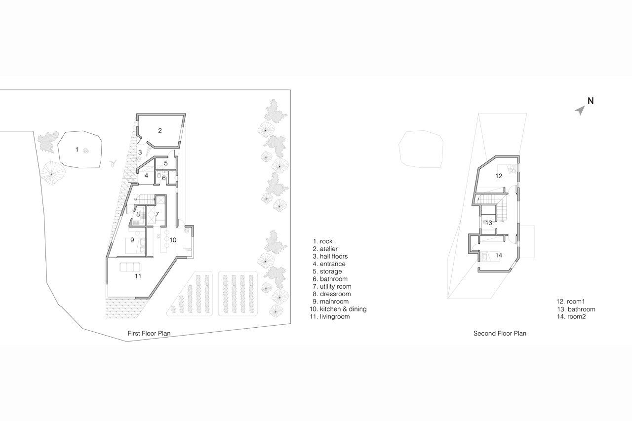
此外,岩石屋有着一些独特的细节:它选择了自然的土地进行挖掘,其中包含了一块十分巨大的岩石。而这块大的令人难以置信的岩石位于房子的入口处,爬上去之后能够看到周围别家的屋子,更能俯瞰北汉江。
这栋屋子的客户是一对喜爱木制品和旅行的姐妹,她们想同时把这里作为她们的游乐场。
B.U.S建筑事务所将这块大岩石原封不动的放在了原处,并将屋子的主体放置在最为中心的位置,而这样子做的目的,更是为能将大岩石的位置腾出来,并能完整的看到北汉江的景色。如此一来,住户就能在享受舒适居住的同时,欣赏到如此壮丽的景色了。
|




