凿壁借光?这座住宅凿的是电梯井
摘要: 这间住宅名为“CS”,位于意大利东南部海港城市巴里附近的小城镇比特力托主广场附近。这座住宅仿佛蜷缩在角落里,成为密集的城市中的一部分,坐落在不同材质及使其的建筑之中。 客户的 ...
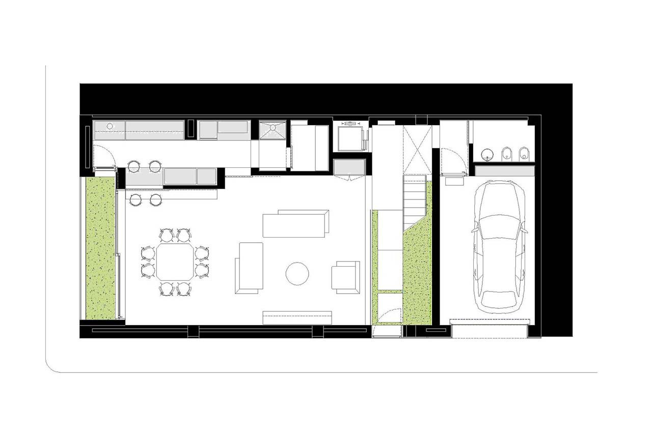
这间住宅名为“CS”,位于意大利东南部海港城市巴里附近的小城镇比特力托主广场附近。这座住宅仿佛蜷缩在角落里,成为密集的城市中的一部分,坐落在不同材质及使其的建筑之中。
客户的要求是将建筑进行功能上的改变,将其变成了一座私人住宅。而这次的设计,相当注重新老建筑的融合交替。
住宅中在一楼为起居空间及我市,另一个卧室和工作室位于上层,露台与开放的空间创造出了最强的流畅度。东立面是完全没有窗户的,并且位于地下室,而南侧则运用了阴影,使用天窗的遮阳设施设计,创建了一个绿色的小空间。
楼梯间采用了一个挂钢结构,并使用了木质台阶。运用了从上层窗口投射来的光束作为照明的光源。
|
已有 0 人参与
会员评论




