阿姆斯特丹城市Loft / Bureau Fraai事务所
简介:建筑事务所:Bureau Fraai/地点:荷兰阿姆斯特丹/建筑负责人: Daniel Aw, Rikjan Scholten/面积:56平方米/项目年份:2015/摄影:Wim Hanenberg/室内设计师:MetNils interieurmaatwerk/承包人:De Vakman ...
|
建筑事务所:Bureau Fraai/地点:荷兰阿姆斯特丹/建筑负责人: Daniel Aw, Rikjan Scholten/面积:56平方米/项目年份:2015/摄影:Wim Hanenberg/室内设计师:MetNils interieurmaatwerk/承包人:De Vakman
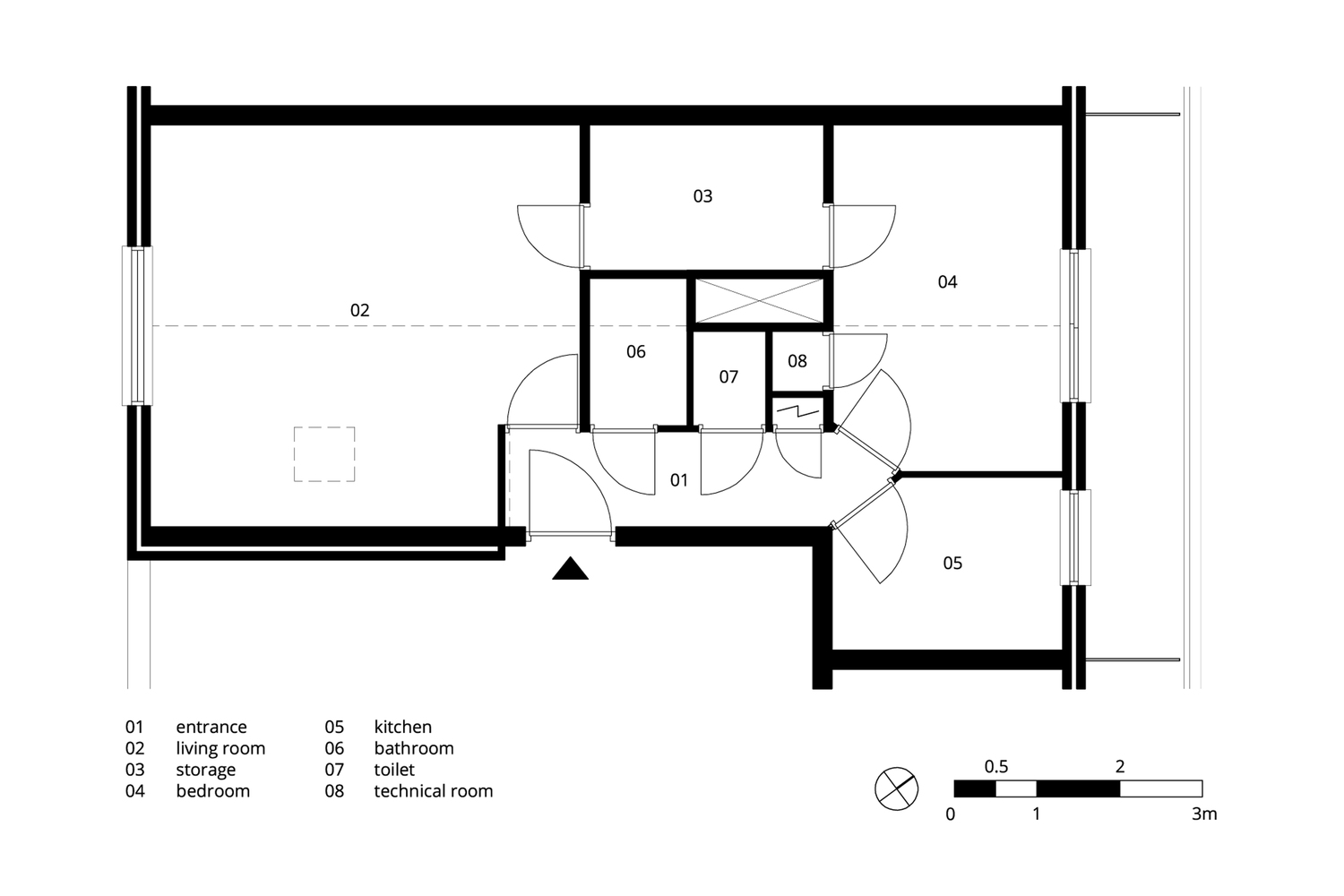
来自于设计师。怎么把一个阿姆斯特丹城中小小的以前的社会公房改造成宽敞的城市loft?来自阿姆斯特丹的设计公司Bureau Fraai是这么办的,首先拆掉围绕着小公寓核心的所有门、墙和小房间。他们的设计聚焦于桦木复合板的壁柜,绵延了整个公寓的长度。
其他组成部分如浴室,卫生间,储藏室和箱式床都由木质包裹。
(本文译自Archdaily,由优尔城 执远翻译,如转载、链接、转贴或以其它方式使用本稿,须注明“来源:优尔城”) |




