
1、规范相关条文说明
《建筑地基基础设计规范》(简称规范)第5.2.4条指出:通过载荷试验或其它原位测试结果、经验值等方法确定的地基承载力特征值,需要进行深度修正。其条文说明中还有一段论述:“目前建筑工程大量存在着主裙楼一体的结构,对于主体结构地基承载力的深度修正,宜将基础底面以上范围内的荷载,按基础两侧的超载考虑,当超载宽度大于基础宽度两倍时,可将超载折算成土层厚度作为基础埋深,基础两侧超载不等时,取小值。”
这两处要求虽然表述不一样,但其实质是一致的,均与地基破坏机理相关。《建筑结构》2007年第11期刊登的《CFG桩复合地基在国美家园工程中的应用》一文及《建筑结构.技术通讯》2007年第11期刊登的《基于整体剪切破坏分析的地基承载力深度修正》一文,均从地基破坏机理出发,分析了地基承载力深度修正的实质。
目前工程届对地基承载力深度修正的认识还十分混乱。本文拟进一步对地基承载力深度修正的实质进行总结,阐述其在常见的几种地基基础形式中的应用,同时剖析几种工程界中流行的认识,希望对广大设计人员有所帮助。

地基承载力
2、地基承载力深度修正的实质与要点
2.1深度修正的实质和要点
文【1】、【2】指出,进行地基承载力的深度修正,就是为了考虑基础两侧基底标高以上的超载q对基础两侧滑动土体向上滑动的抵抗作用。这个超载可以直观地理解为作用在滑动土体表面的压重,见图1。超载q可以是土自重q=rd;也可以是裙房产生的连续均布压力,计算公式可参考规范式(5.2.2-1),注意,活荷载应按“荷载规范”第4.1.2条要求折减。
因此,结合地基破坏机理,以及计算公式建立的前提,总结出地基承载力深度修正的几个要素分别如下:
(1) 地基承载力的深度修正,其实都是超载的压重作用。无论是用土的天然埋深,还是将裙房等其他连续均匀压重折算为土厚进行地基承载力的深度修正,其实质都是基础两侧超载对抗滑动土体向上运动的体现。
(2) 对超载连续、均匀性和满足一定分布宽度的要求。地基承载力计算公式的建立是以超载q为连续均布荷载,并作用在整个滑动体表面为前提的。根据规范和文【2】的建议,超载的分布宽度满足大于(2~4)B(B为基础宽度)的要求即可进行地基承载力的深度修正。如果是天然土层形成的超载,这个荷载基本上是连续均布的。裙房等压重不一定能形成的连续均布的超载,具体分析见下文。
(3) 取最小值的要求。地基的破坏一般都发生在最薄弱部位,因此应取基础四周的埋深(或折算埋深)的最小值进行深度修正。
理解了地基承载力深度修正的实质,就可以把地基承载力深度修正的问题转化为考虑基础四周2~4倍基础边长范围内(表示为图2中反斜线)超载的大小与分布问题。再抓住了上述3个要素,基本可以解决一般工程的深度修正取值问题。
图2 超载作用平面示意图2 超载作用平面示意

2.2设计中存在的错误认识及说明
1.条文说明中“基础底面以上范围内的荷载”是指主楼两侧裙房基础底面标高处的基底压力。
“基础底面以上范围内的荷载”指的是主楼两侧在主楼基础底面标高处的基底压力(见图1)。
由此错误认识产生的问题是:当裙房基础底面标高在主楼基础底面标高之上时(如图3),少考虑了H-h厚土形成的超载作用。这种情况用于深度修正的计算埋深d=相应于荷载效应标准组合时,裙房上部结构传至基础顶面的平均竖向压力和裙房基础自重折算成的土厚d1+(H-h)。
图3 裙房基底标高在主楼基底标高之上时计算埋深图3 裙房基底标高在主楼基底标高之上时计算埋深
2.“超载”是指基底压力“超出”埋深土层自重应力的部分。
从前面分析可知,“超载”不是附加应力。
3.用基底标高处实际反力确定基础的等效埋深。
根据规范公式(5.2.2-1),基础底面反力值p(见图1)与上部结构传至基础顶面的竖向力以及基础自重和基础上的土重有关,与基础两侧的超载没有直接关系,因此,这样做是没有什么道理的。
4.将地基承载力的深度修正原理与地基承载力的长期压密提高作用混为一谈。
地基承载力与上部结构的承载力不同,其与地基变形密切有关。在地基上部荷载的长期作用下,地基变形沉降趋于稳定,因此可以适当提高地基承载力。可见,地基承载力的压密提高机理与超载的压重作用是不同的。
5.当地基承载力按深层载荷试验确定时,还进行深度修正。
按深层载荷试验确定地基承载力特征值时,两侧的超载已经存在,所以规范规定不用进行深度修正。
6.用于地基承载力深度修正的超载折算厚度不应该大于基础天然埋深。
只要满足上述3个要素的超载,就应该可以用于地基承载力的深度修正。不应该受到天然埋深的限制。
7.取基础两边的埋深(或折算埋深)的平均或者加权平均来进行承载力的深度修正。
从破坏模式来看,基础两边的压重不一样时,破坏的滑裂面自然在压重轻的一边先发生。《规范》条文说明“基础两侧超载不等时,取小值。”就是这种概念的体现。在没有充分地论证之前,取小值偏于安全。
8.只考虑沿基础短边方向的修正,不考虑长边方向。
当结构四周的超载相差不多,且其长宽相差较大时,破坏一般不会沿着长边发生,此时取短边(B方向)进行考虑是可以的。但当结构的长宽比较接近时,取四周的埋深(折算埋深)的最小值进行深度修正是较安全的。
3、对裙楼边长小于2倍主楼边长时的考虑及建议
如图4所示,裙楼边长小于2倍主楼边长。分两种情况考虑。
1.当裙楼处的折算深度大于天然埋深时,按照规范要求,取天然埋深进行深度修正是没有问题的。但作者认为,当裙楼可以形成较为连续均布的超载时,可以适当考虑裙楼的压重作用,取计算埋深处于裙楼折算埋深和天然埋深之间。因为这方面没有
权威资料,因此具体取值应该慎重,或者参考工程经验。
2.当裙楼处的折算埋深不大于天然埋深时,规范没有明确说明。这个时候,取折算埋深,取小值从小考虑应该是合理、且偏安全的。当然如上所述,从压重机理来说也可以适当考虑天然埋深的较大压重,同样应该慎重。

图4 裙楼边长小于2倍主楼边长的情况图4 裙楼边长小于2倍主楼边长的情况
4、各种基础类型的计算埋深取值举例
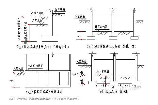
4.1条形或独立基础见图5(a),(b)。
4.2箱基或筏基等整体基础见图5(c)。
4.3独立基础+防水板见图5(d)。
该基础防水板的基底反力的大小与其构造密切相关[3]。防水板下设置软垫层,起到确保防水板不承担或承担最少量的地基反力时,软垫层下的地基反力q可以考虑防水板自重、地下室地面建筑做法重等。如果防水板下采用的是一般垫层,防水板与基础将共同承担上部结构传来的力,其地基反力由分析计算得到。
图5 各种情况的计算埋深取值示意(图中d表示计算埋深)图5 各种情况的计算埋深取值示意(图中d表示计算埋深)
对于6~8m的柱距以及板厚加素混凝土垫层为500mm左右时,防水板的基底反力也不能形成均布荷载,也就不能将基底平均压力q全额作为超载对独立基础下的承载力进行深度修正。不少设计人员将基底压力平均值折减后作为超载,即6

式中a为折减系数。折减系数取多少取决于柱跨、板厚及土的性状。柱距越小、筏板越厚、地基土越好,折减越少,但由于这方面的资料较少,承载力修正的量值具有很大的经验性,相关讨论见文[1]。但折减系数不能取得太小,否则计算得到得折算深度de小于裙房室内地面到基础底面的距离d1,就没有意义了。
计算埋深取室外埋深和折算埋深的小值。
5、带裙房的主楼的地基承载力深度修正举例
为了突出问题,仅对结构短边方向、基础两边天然埋深一样、裙房边长大于主楼边长2倍、主楼基础为整体性较好的箱形或筏板基础的情况进行说明。
5.1 主裙楼一体
计算埋深取左右两边折算埋深的最小值,见图6(a)。
5.2 主裙楼间设缝,之间填粗砂充实值地面的情况
由于粗砂可以传递水平方向的受力,因此对主楼地基承载力的深度修正可以参考主裙楼一体时的情况,见图6(b)。
5.3 裙房为独立基础
因为,裙房的独立基础不能形成连续均匀的分布荷载,因此,不能考虑裙房荷载对超载的贡献。其计算埋深应为从裙房室内地面算起的天然埋深,见图6(c)。
5.4 裙房为独立柱基础+防水板
如4.3的分析,防水板不能形成均布荷载,宜通过防水板下反力测试,积累一定实测资料后,按式(1)对其基底反力进行折减后作为超载,见图6(d)。
图6 带裙房的主楼的地基承载力深度修正示意(图中d表示计算埋深)图6 带裙房的主楼的地基承载力深度修正示意(图中d表示计算埋深)
参考文献
【1】 关伟兰,李纯仿,佟建兴,闫明礼.CFG桩复合地基在国美家园工程中的应用[J]. 建筑结构,2007(11).
【2】 于海峰. 基于整体剪切破坏分析的地基承载力深度修正[J]. 建筑结构.技术通讯, 2007(11).
【3】 朱炳寅. 对独基加防水板基础的设计[J]. 建筑结构.技术通讯, 2007(11).
【4】 建筑地基基础设计规范(GB50007-2002)[S].中国建筑工业出版社,2002.(
|