建筑与音乐合一的中国爱乐乐团音乐厅提案
|
来自Chiasmus Architects:与柏林爱乐交响乐团的建筑成为世界性艺术家心目中的圣地一样,中国爱乐乐团的新址也将拉近北京与世界的距离。建筑在这一过程中的作用,是将建筑的主体性抽离出来,使之与音乐性合一。凝固的/流动的、永恒的/临在的、建筑的/音乐的 在这里发生交融和转换。
“流动的”将成为对建筑形制的一次再思考。音乐的时间性和抽象性都给了建筑师无限的灵感:让建筑流动起来。建筑主体积形成一个“扭矩”,使得城市空间和观众流动起来;主音乐厅的室内利用“飞天”隔音板和看台,使得空间流动起来;建筑顶部分布了各类“明窗”,使得光线流动起来。甚至于排练的小号声也会流动起来,通过排练厅的一个眺望口,若有若无的传递给路人, “流动的”呼应着湖面的景观,也有效隔离了城市的喧闹。
而建筑的主体则是内省的、朴质的,不事张扬的,以此获得回到初心状态的体验,这是中国独有的“朴学”原理,含而不露。 “夫不争,故莫与之争。”由于不张扬,多了一份“沉静”的气质,也与周围和其它建筑拉开了距离。三个简洁朴实的体量,在真实体现内部空间需求的同时,低调地为室内的各种音乐活动服务,使音乐家的排练演出和欣赏者的聆听变得更加纯粹。抽离了自身的主体性,建筑与音乐合二为一。
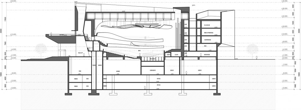
建筑特点: 1、建筑体积的坚实,外立面的整体性,石材的主墙面,这一切都把工体周边的喧噪环境隔离在外,从而在建筑体积内部形成了一个适合古典音乐的宁静空间.
2、方形建筑体的顺时针平面旋转为前广场置留出更广阔的的空间,人们从城市进入音乐厅的过程被丰富,在被特意延展的过渡中,心慢慢地沉静。
3、在建筑内部不同位置设下的大小不一的光井和天窗,过滤的光线,使纯粹的天光流入室内。人们在室内空间中也拥有充的氛围。
4、在朴实的外形中,主音乐厅借用了丝绸之路上“敦煌莫高窟”的语言,壁画中“飞天”轻盈飘逸的丝带和明亮轻快的颜色在音乐厅中以另一种形式存在(折音板和看台护栏)。在此,艺术与音乐融合,变得灵动。每一块折音板的角度和高度都是可调的,以达到不同表演的最佳声学环境。
5、无论是在演出中场想要观看城市夜景的观众,还是在排练过程中想要休息的乐团音乐家,或者忙碌办公中需要透透气的行政人员,不同人群都可以在建筑中找到专属的露台。
6、干净简明的外立面上悬挂着的巨大海报面对城市的人流和车流。而演出过程中,音乐厅内的现场实况也可以通过投影在外墙上播放。无论是在湖边,还是在广场的台阶,建筑周围的人们都能享受到音乐的美妙。
|




