小公寓大幸福(组图)
香港Campus Hong Kong学生公寓是零壹城市建筑事务所(LYCS Architecture)为解决城市青年群体租房问题而推出的一个富有革命性改变的酒店式公寓。香港地少人多、寸土寸金,租房一直是困扰年轻人的一个大问题。为了应对这一挑战,设计师将整个公寓进行了全新的改造设计。
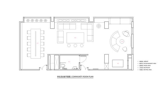
Campus学生公寓位于香港荃湾区,北贴青山公路汀九段,南临荃湾,身处公寓中便能看见海景,地理位置十分优越。原酒店共有12层,48间Capmus学生公寓分布在三个较低楼层,设计为学生公寓配备了用于交流的公共活动室,年轻人可以聚在这里一起聊天、交友、看比赛以及玩游戏,除此之外健身房、海滨游泳池、露台和咖啡厅等生活配套设施一应俱全。
每个公寓室内实用面积只有27㎡,设计师祛除了原本隔开两个房间中心的墙壁,取而代之的是一张共享的高桌,它不仅具有就餐、阅读、学习的功能,更是为室友们提供了一个社交互动的平台。合理的床位安排,不仅利用了每一寸的空间,飘窗,墙壁内,甚至是屋顶,都被赋予了实用的功能空间,同时又仍然能保持一种私密的感觉。公寓的4个床位被设计成了半悬空式,床位下面留出的空间设置了一个较为宽敞的书桌。房间里的四个床位都设计全钢梯子、 遮光窗帘、 便利的墙上插座和阅读灯,拉上窗帘,你就拥有了一个不被打扰的私人空间。在这个空间里还巧妙地纳入挂衣杆、可伸缩的架子、可上锁的抽屉、独立存放行李箱的空间、以及镶入式书桌和多个USB 插口,十分便利,你可以睡在床上便能解决掉工作、学习的大部分需求。
房间的层高比普通的公寓要高一些,不管是睡在床上还是坐在椅子上,年轻人都可以享受到大尺度空间的舒适感。房顶的天花板也是他们可以自由创作的空间,你可以创造出任何你喜欢的图案或者文字。此外公寓还设有公用的浴室、厨房和餐桌、冰箱等生活必备设施,简洁而细腻的材质配以轻工业感的装饰,空间的基调轻松活泼。 根据香港的材料与人工费用来计算,每个房间从硬装到家具所有的改造费用加在一起非常的价廉物美。此项目设计的意义在于,它为具有巨大前景的中国年轻人租房市场,提供了一种可借鉴的解决问题的模式,不需要付出很高的成本,便可以拥有真正属于年轻人的空间与生活。
项目名称:香港Campus Hong Kong 学生公寓项目地点:香港 项目设计:零壹城市建筑事务所 LYCS Architecture 设计团队:阮昊、何昱楼、靳成、刘琪、吴淼、许维卓 项目时间:2013-2015 图片版权:Baybridge Hotel 图纸版权:零壹城市建筑事务所 Happiness inside a Small Apartment Campus Hong Kong Student Apartment Design Campus Hong Kong is a revolutionary apartment for students designed by LYCS Architecture, which aims to provide solution to renting problems in high-density cities in China. In large populated city like Hong Kong, living expense for young people is a heavy burden. The problem is evident, nice apartments comes with higher rate while cheaper ones are just not cozy. To cope with this challenge, the designers found a brand new and affordable way through renovating the existing hotel. Located in Hong Kong’s Tsuen Wan district, Campus Hong Kong enjoys convenient transportation and a great view of the bay. It consists of 48 student apartments located in the lower 3 levels of an existing hotel.The student common room designed to have a cozy environment for daily social activities and gaming. Besides, it is also facilitated with gym, cafe, and even swimming pool. The interior area of each room is approximately 27㎡. The design removed existing partition wall in between two rooms, replaced it with a central high table as a common space for study and social for 4 students. In this limited space, every single inch is fully used: the bed was designed to be half raised and the study desk is placed under the bed that to make full use of space. Each bed with a steel access ladder, blackout curtain for privacy, electrical wall sockets and a reading light. With the curtain shut, you will own a personal spaces, which also neatly incorporates a clothes rail, built-in shelves and lockable drawers, separate luggage space, along with a built-in desk sporting a multi-socket USB hub. It’s a pleasurable experience for students to accomplish study and work while in the bed. Students can enjoy the comfort of spacious room either when laying in bed or sitting in the chair. The blank ceiling becomes the area for the renters to create whatever favorite pattern or drawings they want to draw. Throughout the windows, one will have a great view of the sea. Each apartment unit is also equipped with public bathroom, kitchen and other necessarily daily facilities. Given the cost of material and labor in Hong Kong, the budget of the whole project is relatively low. The emergence of this new type of apartment is providing a method to solve problems in such a large and promising Chinese renting market. Without high cost or monthly rate, young people can still own the space and life that really belongs to them. Project Name: Campus Hong Kong Location: Hong Kong Designer: LYCS Architecture Design Team: RUAN Hao, HE Yulou, JIN Cheng, LIU Qi, WU Miao, XU Weizhuo Project Date: 2013-2015 Photo Copyrights: Baybridge Hotel Drawing Copyrights: LYCS Architecture About LYCS Architecture LYCS Architecture, is an international practice based in Hangzhou and Hong Kong. As one of the most well-know new architecture and interior design office in China, the firm engages in cutting-edge architectural design as a pioneer of cultural and creative industries in China and internationally. The firm is committed to both the ever-evolving demands of architectural and urban design theory and practice as a function of our society. We are invested in the critical issues of building design, urban development, and construction in China, and the design demands that an innovative design synthesis requires for international quality. LYCS Architecture’s design works has been acknowledged by media and press worldwide, including New York Times, TIME, Forbes, China CCTV, China Daily etc. LYCS’s has received numerous design awards internationally, including “2015 INNOVATORS 50”, “Forbes China 30-Under-30“, “50 under 50, 21st Century Innovators“, “Architectural Society of China – Young Designers Prize”, “2015 A+Awards ‘Jury Winner’ and ‘Popular Choice Winner’” , “2014 A+Award ‘Jury Winner’” , 2013 Chinese Architectural Art ‘Young Designers Prize’, the Azure Magazine’s 2011 AZ “People’s Choice” Award, 2010 French CA’ASI “New Chinese Architectural Design Award”, to name a few. LYCS’s work was exhibtied in world-class exhibitions such as 2015 & 2014 Milan Design Week, 2014 Beijing Design Week, 2013 Design Shanghai Exhibition, and the 11th,12th,14th la Biennale di Venezia in Venice, Italy. This 40-people firm is currently developing designs that range from offices to residential, retail to cultural, and civic to masterplanning. These projects are located throughout China and America, including Beijing, Hong Kong, Shanghai, Shenzhen, Hangzhou, Sanya, and others. The team has breadth and depth working with such architectural firms as SHoP, Preston Scott Cohen, and Reiser+Umemoto in the United States, Bjarke Ingels Group in Denmark and Kengo Kuma & Associates in Japan, where they accumulated a wealth of practical experience. About RUAN Hao, Principal Principal of LYCS Architecture, leading young Chinese Architect. Ruan Hao received his Master of Architecture Degree from Princeton University School of Architecture. He also holds M.Arch and B.Arch degree of architecture from Tsinghua University in Beijing and was the youngest Visiting Fellow at Harvard University Graduate School of Design, where he later taught design studio as a Teaching Fellow with Wang Shu. Currently Ruan Hao teaches at China Academy of Art School of Architecture. Ruan Hao founded LYCS Architecture in 2010, and he is a representative of the 1980s’generation young Chinese architects. He is “2015 INNOVATORS 50” by CBNweekly, the first architect elected “Forbes China 30-Under-30“, the youngest to be awarded “2014 China Architecture Association – Young Chinese Architect Award” , “50 Under 50: Innovators of the 21st Century” and he was honored as “2013 China Top 10 Interior Designers”, the youngest “Asia Society Asia 21 Young Leaders” and “Goldman Sachs Global Leaders”. His representative works includes Tiantai Chicheng Primary School which raised strong attention among global media such New York Times and China Central Television, Taiyuan Museum of Art, and the TIME reported worldwide popular furniture design CATable. His works has received numerous design awards worldwide including 2015 A+Awards ‘Jury Winner’ and ‘Popular Choice Winner,2014 A+Award Jury Award, PETA- Innovator for Animals, 2011 AZ Award Design Interior Award and 2010 Chinese New Architecture Award. His works has been exhibited internationally including Venice Biennale, Milan Design Week and Beijing Design Week. Prior to founding LYCS Architecture in 2010, Ruan Hao had worked in Preston Scott Cohen Inc, SHoP Architects and Wang Shu‘s Amateur Architecture. He was one of the authors of the book “Design for China” and was one of the curators of 2013 Design Shanghai Exhibition. For more information and images Please contact ZhouYu or Xianjuan Hu, Assistant of Communication via:Tel: +86 571 8661 5392Fax: +86 571 8661 5790E-mail: zhouyu@lycs-arc.com、hxj@lycs-arc.com Website: lycs-arc.com Twitter:https://twitter.com/LYCS_ARC Facebook:https://www.facebook.com/pages/LYCS-Architecture/870984289606077?ref=bookmarksHong Kong Address: Room D, 10/F, Tower A, Billion Centre, 1 Wang Kwong Road, Kowloon Bay, Hong Kong Hangzhou Address: Jing Mao Tower, No.466 Yan An Road, Hangzhou, China | 310006 |
会员评论






