杜塞尔多夫莱茵芭蕾排练厅
简介:gmp设计的杜塞尔多夫莱茵芭蕾排练厅开幕启用。经过将近10个月建设周期,新建莱茵德意志歌剧院芭蕾舞排练厅于2015年9月4日正式开幕。gmp · 冯·格康,玛格及合伙人建筑师事务所与HOCHTIEF Solutions组成的联合体通过 ...
|
gmp设计的杜塞尔多夫莱茵芭蕾排练厅开幕启用。经过将近10个月建设周期,新建莱茵德意志歌剧院芭蕾舞排练厅于2015年9月4日正式开幕。gmp · 冯·格康,玛格及合伙人建筑师事务所与HOCHTIEF Solutions组成的联合体通过塞尔多夫市主持的PPP招标程序,共同完成项目的建设,新建建筑坐落于施坦因山原莱茵轨道货运仓库历史建筑旧址之上。
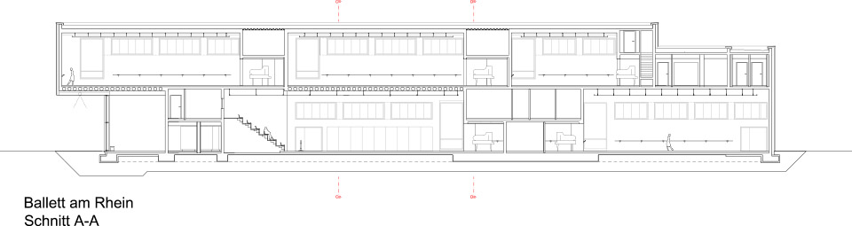
排练厅为一座集约型建筑体,坐落于文物保护建筑城铁仓库以及哥白尼街住宅区之间,可为演员日常排练提供优良的条件。歌剧院的50名舞者以及芭蕾舞学校的55名学生将是排练厅的主要使用者,排练厅内设有两座实际规模舞台,三座小排练厅以及更衣室、休息室、理疗室和来访者公寓。
新建建筑形象令其自身从异质化周边环境中区别出来,并呈现内敛的姿态,南侧立面底层退进,强调了邻近的莱茵轨道货运仓库一面二层之上的12米高芭蕾舞练习厅。新建建筑所在周边环境仍保留有历史上工业用途的痕迹。其建筑语言在颜色和材料的选择上延续了基地工业时代的遗留风貌,同时刻画出其工作车间和艺术家工作室的特点。建筑刻意回避了主导性和引人瞩目的颜色,较为粗糙和原始的形象符合其充满创造性和实验性舞蹈工作车间的气质。建筑内部仍延续了同样的设计语汇,对色彩和材料选择审慎,墙面为清水混凝土。
总平
芭蕾舞练习厅
芭蕾舞练习厅
芭蕾舞练习厅
交通核心
餐厅
凝练的颜色和材料
|




