造价不到10万低收入住宅项目
摘要: 墨西哥建筑事务所S-AR创建了非营利性组织Comunidad Vivex,旨在为低收入的家庭和社区进行建筑设计和社区规划,保证他 们的基本建筑设施。这个项目便是其中案例。建筑师希望通过这个项目为中低收入的家庭找到一个可 ...
墨西哥建筑事务所S-AR创建了非营利性组织Comunidad Vivex,旨在为低收入的家庭和社区进行建筑设计和社区规划,保证他 们的基本建筑设施。这个项目便是其中案例。建筑师希望通过这个项目为中低收入的家庭找到一个可行且良好的模式。
作为一个社会性质的项目,项目的业主也积极的参与这个占地7*15米的建筑建设。业主是一个没有自己房屋的建 筑工人,他不能稳定的为一个公司工作,只能不断的在有工作的地方中转移,这样很难存钱,他是墨西哥劳动人民的缩影。
Comunidad Vivex通过材料商的赞助提供建筑材料,业主的家人和朋友帮助建设,建筑师进行建筑设计,最终完成了这个包含材 料在内,总花费达到11600美元(不到人民币10万元)造价的房屋,为业主的家庭提供了优质的空间,有利于业主的儿女健康成长和 学习。
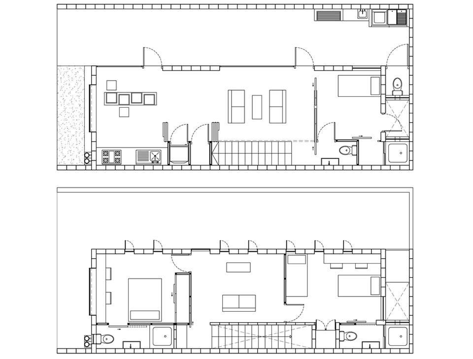
房屋的概念可以理解为盒中盒,最外面的大盒子是院子,靠边放的中等大小盒子是建筑,建筑内部一侧还有一个包含所有功能体的薄盒子。
最终项目产生了一个带来自然采光和通风的侧院,家人还能在这里和邻里发生社交。一层主要有餐厅厨房客厅,还有一个卧室,可以让 行动不便的老母亲居住。二层有一个客厅和两个卧室。联系上下两层的楼梯下方被利用做储藏空间。 建筑材料为钢筋混凝土,木材,玻璃。经过改造完全可以满足永久居住的条件。
|
已有 0 人参与
会员评论




