建筑时空 首页 建筑作品 商业建筑 查看内容

俏皮灵动的生物科技企业孵化器

2015-9-6 14:30| 发布者: ccbuild| 查看: 1104| 评论: 0 |来自: 网络

简介:来自PERIPHERIQUES Architectes:这是一个中心有大四边形天井,周身包裹金属竖条外表皮的生物科技企业孵化器。 建筑师给外表皮竖向条纹赋予了动感波动,局部区域还有明显变化,最终整个表皮拥有了俏皮而有机的风格 ...

俏皮灵动的生物科技企业孵化器

来自PERIPHERIQUES Architectes:这是一个中心有大四边形天井,周身包裹金属竖条外表皮的生物科技企业孵化器。 建筑师给外表皮竖向条纹赋予了动感波动,局部区域还有明显变化,最终整个表皮拥有了俏皮而有机的风格,同时这也意喻着生物DNA与纳米技术等有机技术的奥妙无穷。

俏皮灵动的生物科技企业孵化器

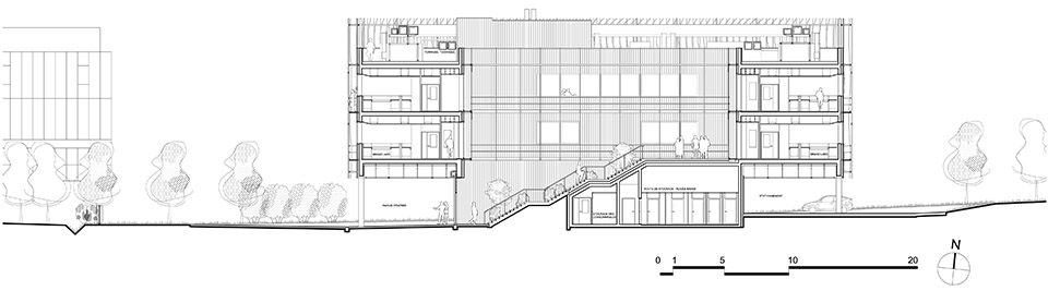
建筑底部周圈被挑空,作为停车用地,而周边的场地用来种植更多地绿化,人们从底层灰空间上楼梯到达位于二层的天井庭院。建筑内与外的绿化关系由此串联。精心设定的柱网结构间距支持灵活的室内装修。因行业的特殊情况,增设实验室功能,并有高标准的通风设备。建筑各专业设备管线屋顶暴露交集。

俏皮灵动的生物科技企业孵化器

俏皮灵动的生物科技企业孵化器

俏皮灵动的生物科技企业孵化器

俏皮灵动的生物科技企业孵化器

俏皮灵动的生物科技企业孵化器

俏皮灵动的生物科技企业孵化器

俏皮灵动的生物科技企业孵化器

俏皮灵动的生物科技企业孵化器

俏皮灵动的生物科技企业孵化器

俏皮灵动的生物科技企业孵化器

俏皮灵动的生物科技企业孵化器

俏皮灵动的生物科技企业孵化器

俏皮灵动的生物科技企业孵化器

俏皮灵动的生物科技企业孵化器

俏皮灵动的生物科技企业孵化器

俏皮灵动的生物科技企业孵化器

俏皮灵动的生物科技企业孵化器

俏皮灵动的生物科技企业孵化器

俏皮灵动的生物科技企业孵化器

俏皮灵动的生物科技企业孵化器

收藏 邀请

鲜花

握手

雷人

路过

鸡蛋

相关阅读

已有 0 人参与

会员评论

返回顶部