用起伏华夫板划分办公空间
简介:加拿大partisans设计事务所在多伦多的一家现存的办公建筑内通过插入表面起伏的华夫板对办公空间进行改造。这个智囊机构办公室一共240平方米,占据了密斯·凡·德罗设计的TD中心的上层空间。
|
加拿大partisans设计事务所在多伦多的一家现存的办公建筑内通过插入表面起伏的华夫板对办公空间进行改造。这个智囊机构办公室一共240平方米,占据了密斯·凡·德罗设计的TD中心的上层空间。
↑木板向外拱起,并让位给划分独立办公室的玻璃墙。 木材面板重新划定了办公室,其划分出了一个中央办公空间,以及周边一系列私人办公室、会议室、一间厨房以及沿其边缘设置的休息室。木板向外拱起,并让位给划分办公室的玻璃墙,玻璃墙作为空间的过渡,有利于营造开放感和通透感。因此,相对较小的单元会感觉变得更大,为每个员工提供超出自己办公桌的空间感受。
↑木材面板划分出了一个中央办公空间,以及周边一系列私人办公室
↑该方案占据了密斯·凡·德罗设计的TD中心的上层空间。
↑每个空间为员工提供超出自己办公桌的空间感受。
↑(左)入口与等待区 (右)一个面积较小的小组会议会议区
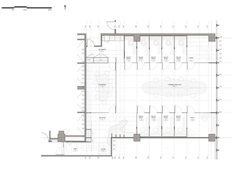
↑经过精细布置的240平方米办公室的平面图
项目信息—— 名称:智库办公室/ 地址:加拿大多伦多/ 业主:保密/ 规模:2,500平方英尺(240平方米)/ 预算:保密/ 类型:商业,办公 |
已有 0 人参与
会员评论




