韩国三角形学校 / NAMELESS 事务所
简介:NAMELESS Architecture在韩国首尔附近的南扬州设计了一座“简单”的三角形型学校,期望用这种孕育“复杂”的“简单性”来探讨教育建筑新可能性。
|
NAMELESS Architecture在韩国首尔附近的南扬州设计了一座“简单”的三角形型学校,期望用这种孕育“复杂”的“简单性”来探讨教育建筑新可能性。
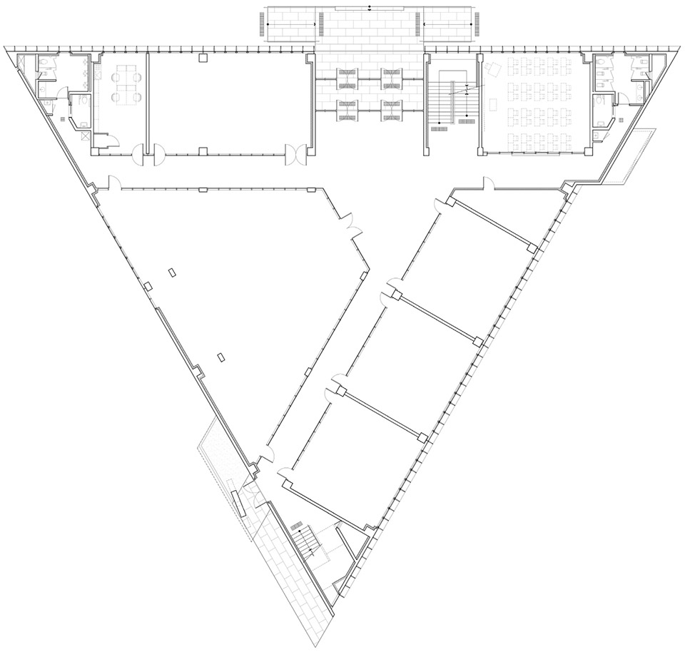
三角形的学校北边临着操场,西边临着教学楼,东边临着森林。周边环境各不相同。
建筑的中心院子也是三角形. (院子是一层屋面上的屋顶花园)
建筑两个方向的表皮各不相同,这是应对环境的结果。
面对操场,建筑表皮采用了垂直百叶窗+透明玻璃幕墙。表皮保护建筑隐私又提供开放性。
面对另一栋教学楼的西面,采用了不透明的混凝土,这面表皮上的开窗是三角形形状,门廊支柱也是三角型形状。同内部的三角形院落以及外形的三角形形状形成呼应。
学校内部
内部朝向三角型庭院(庭院位于一层屋顶,属于屋顶花园)的建筑立面是透明的。这为建筑内部提供了光照并增加了视野范围,为建筑带来景观,风,阳光。
三角形内庭院连同围绕它的公共空间让学校氛围活跃。
|
已有 0 人参与
会员评论




