散落山间的水晶石,瑞士圣·马可会堂
|
来自建筑师的描述: Espace St-Marc,一个为各种活动和展览准备的空间,位于Dranse弯曲的场地中。建筑夹在两个混凝土体块之间,大堂和主厅朝向山谷的延伸方向开窗。从室内往外看,窗户的框架就像山峦的轮廓。
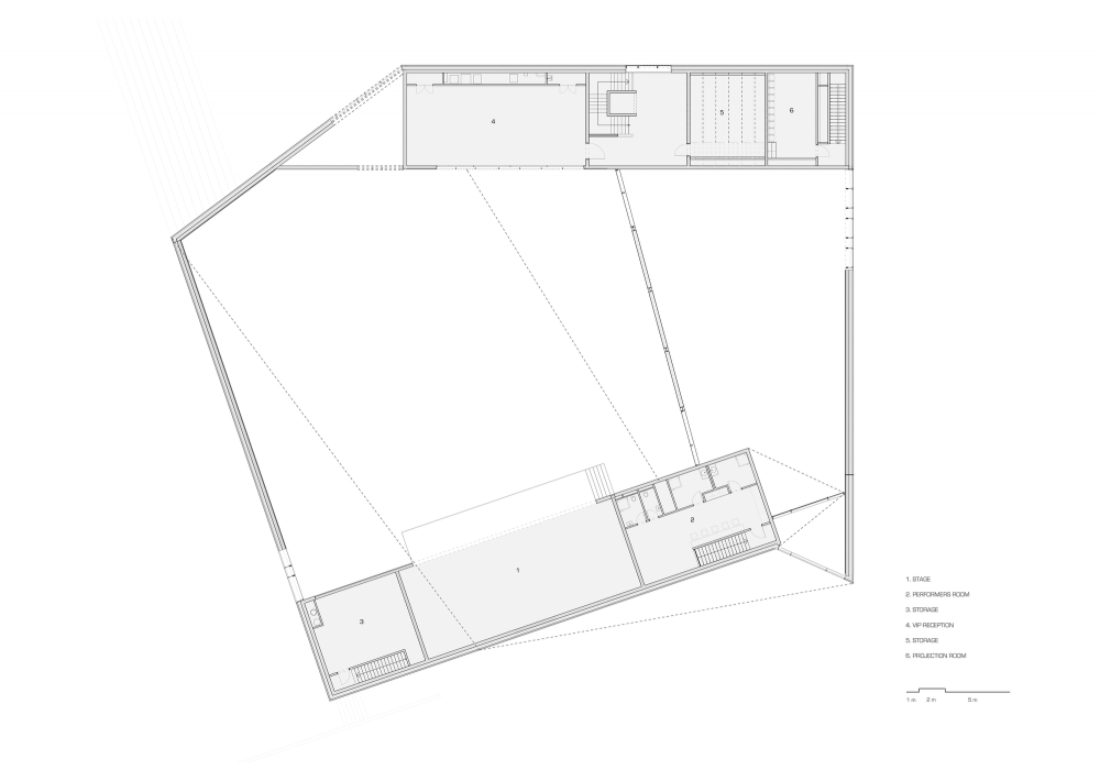
主厅提供了一个900平方米宽敞的横向空间,能容纳650座的移动看台,此外主厅还附设了各种不同的空间(如大堂、放映室、礼堂等),不同的楼层有不同的多功能用途。
室内材料的运用以呈现的光线特质优先考虑,而不是颜色,结合金色和暖色调,整体有一种自然光照的效果。
整个建筑体量像是一个单棱镜,它由外墙和屋顶通过单一的组合和饰面材料结合在一起。不锈钢金属覆层让建筑时而明媚闪亮时而黯淡无光,营造一个微妙的把戏,使建筑与周边环境产生对话。
这种材料能消隐自身而去表现和反映周围的环境,屋顶的折叠能与山谷远处的风景和山峦的“天际线”之间产生一种有趣的对话。
↑总平面图
↑一层平面图
设计:Voltolini architectures SARL, Jean-Paul Chabbey/ 地点:瑞士/ 面积:4257.0平方米 完成时间:2013/ 摄影:Jean-Pierre Boss/ 工程师:Guillaume Favre ingénieurs SA, Pierre Kurmann/ 场地管理:Philippe Vaudan architecte HES |
会员评论




