自娱自乐的14平米度假花园(组图)
在法国南部尼斯地区著名的度假天堂--蔚蓝海岸(Cte d'Azur)有一座特别不起眼的小木屋,它的外形一点也不柯布西耶,没有带形窗没有白墙没有混凝土,然而它却是柯布西耶一生中唯一为自己建造的住所。
柯布西耶的老朋友也是他从前的管道工Rebutato在蔚蓝海岸开了家名叫“海洋之星”小餐馆。1950年底当柯布西耶与Rebutato一家庆祝新年时,他花了45分钟完成小木屋(Le Cabanon)的草图。紧邻着“海洋之星”餐馆,小木屋的这块用地也是他向Rebutato求来的。柯布西耶之后也给了Rebutato 一家非常建筑师式的回报---为他们家设计建造了5个度假小屋。
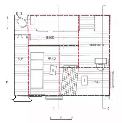
一个有严格数学逻辑的盒子 柯布西耶按照普通男性身高开创了他的两套基本模数:红色系列和蓝色系列。小木屋的一切尺度都是基于这个模数系列。平面3.66米乘以3.66米,长度相当于两个身高183的人平躺叠加,层高2.26米相当于一个身高183的人举起手臂的高度。 基于模数的逻辑,小木屋的平面由4个140厘米x226厘米的长方形围绕中间86cmx86cm的正方形呈风车式排列。4个长方形自然形成2个睡眠区(可变,有时候是一个),更衣区和一个工作区。
图:侧轴图
图:立面解剖图 墙面,门窗,天花板同样使用了这套模数系统,天花板局部高上去43厘米周边为储藏空间。卫生间分解成两部分一部分藏在入口玄关处与睡眠区仅以窗帘和矮柜隔开。洗手池被分离出来与工作区结合,这可能更方便于柯布的工作状态下的使用。至于这个空间里为什么没有厨房?小木屋玄关中的一扇隐秘小门直接通向餐馆,把“海洋之星”当食堂的柯布也就没有再设计单独的厨房了。就餐这样带有一定社交性质的活动也被隔绝在这个空间之外,小木屋里自然也找不到可以待客聊天的地方。
图:更衣,工作与睡眠相得益彰,空间一点也不局促
图:床与卫生间之间的分隔方式 小木屋所有的家具采用嵌入式(build-in),家具很简单:一张单人床(有时是两张),一张邻墙而置的工作台,两把装威士忌板条箱做成的椅子,还有两个储物柜。值得一提的是,柯布西耶非常重视储物空间,在可利用得空间里都布置了储物区,比如床和屋顶。
图:储物至上的家具
图:柯布西耶创作出郎香教堂的工作台 在小木屋整个立面上只开了三扇可开启窗--两个70厘米见方的方形窗,和一个长条窗:一扇开向岩石,一扇开向树木,一扇面对海景。窗子的尺寸同样来自柯布西耶的模数系统。窗扇的设计尤为特别,内部的木窗为折叠式,一半装饰柯布西耶的画,一半装饰镜子,镜子反射出更多窗外的美景。面对一望无际的地中海美景这样节制的开窗面同样体现了小木屋设计的极少原则。这个是一个可以聚精会神思考和冥想的空间,有足够工作的光线进入和不过分入侵的美景即可。美景中幽闭的盒子更是想象力驰骋的天堂。
在这个幽闭的空间中,也许柯布西耶的三幅画是唯一的情调和亮色。
|
会员评论




