墨西哥索玛雅博物馆
简介:LAR和Fernando Romero共同设计的索玛雅博物馆预计与2010年竣工。这个博物馆将容纳各种14世纪以来的收藏、包括绘画、雕塑和实物艺术品,这里面有世界上第二大的罗丹雕塑收藏。博物馆构思来源与雕塑,其自由的形体将成 ...
|
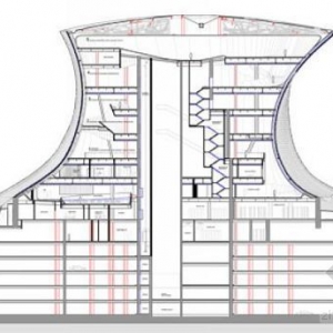
LAR和Fernando Romero共同设计的索玛雅博物馆预计与2010年竣工。这个博物馆将容纳各种14世纪以来的收藏、包括绘画、雕塑和实物艺术品,这里面有世界上第二大的罗丹雕塑收藏。博物馆构思来源与雕塑,其自由的形体将成为墨西哥城的一个现代标志,同时也是一个功能化的展览空间。 博物馆先锋的形体设计是对典型的博物馆标准化方盒子体型的巨大突破。人们进入博物馆时可以从各种角度观赏这个引人注目的形体。外立面由半透明的混凝土建成,可以过滤光线,使空间显得亮堂开敞,但不会牺牲材料的结构整体性。一旦进入建筑内部,中间各层在一个连续的体量中彼此开敞,但又分隔成不同的界定区域。所有的空间形状和形式上都是唯一的。
|
已有 0 人参与
会员评论
相关分类
最热文章
最新文章









