深圳蛇口旧工业风办公事务所设计
摘要: 摘要: 事务所办公室位于深圳蛇口。办公室的所在建筑原为渔港旁的一栋多层工业仓库,建筑的南侧正对渔港码头,西侧为渔港修船厂。旧工业遗产的更新改造为这个传统渔港注入了新的社会活力。 ...
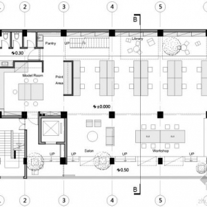
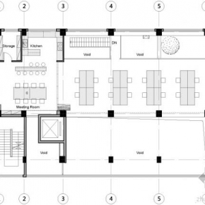
摘要:事务所办公室位于深圳蛇口。办公室的所在建筑原为渔港旁的一栋多层工业仓库,建筑的南侧正对渔港码头,西侧为渔港修船厂。旧工业遗产的更新改造为这个传统渔港注入了新的社会活力。
办公室被设计成一个开放创意空间,除了满足日常的办公需求外,多样性的共享空间也为即时交流提供了各种可能。我们期望通过不定期举办文化交流活动,使得这里成为某种意义上的公众客厅。这里有大海、有音乐与咖啡,这些不仅是设计灵感的源泉,更是一种生活态度的标志。
深圳蛇口旧工业风办公事务所设计
深圳蛇口旧工业风办公事务所设计
深圳蛇口旧工业风办公事务所设计
深圳蛇口旧工业风办公事务所设计
深圳蛇口旧工业风办公事务所设计
深圳蛇口旧工业风办公事务所设计
深圳蛇口旧工业风办公事务所设计
深圳蛇口旧工业风办公事务所设计
深圳蛇口旧工业风办公事务所设计
深圳蛇口旧工业风办公事务所设计 |




