冈萨雷斯天使图书馆(Biblioteca Angel Gonzalez)
简介:项目名称:冈萨雷斯天使图书馆(Biblioteca Angel Gonzalez) 建筑师:Carlos de Riao Lozano 项目地点:西班牙 马德里 项目时间:2010年 摄影:Miguel de Guzman 图书馆位于一个十分重要的矩形场地 ...
![]() 项目名称:冈萨雷斯天使图书馆(Biblioteca Angel Gonzalez) 建筑师:Carlos de Riaño Lozano
项目地点:西班牙 马德里
项目时间:2010年
摄影:Miguel de Guzman
图书馆位于一个十分重要的矩形场地,周围的公寓楼没有任何建筑性可言。
这是一个社区图书馆,之前是由市文化部分开发的,不同房间采用相似的表面处理。
这种大小的图书馆最好采用两层结构,因此需要在地上新建两层。此外还需要一个地下层来容纳公共设备和车库。
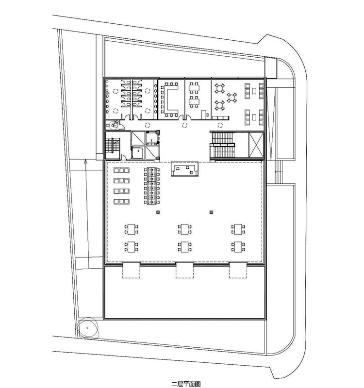
矩形体量与场地相契合,主入口位于Granja de Torrehermosa街道,朝向西北方向和Paseo de Extremadura。用户一旦通过安检,进入大厅就与以下空间建立了联系:报纸杂志阅览区、儿童与青少年图书馆、资讯和租借区、会议室、24/7自习室。最后一个房间有独立入口,图书馆闭馆后依然开放。
以上各个房间都沿楼层周围布置,四个立面上都有窗户。
建筑师试图避开建筑周围没有人情味的环境视野,因此在东北和西北立面以及街道间引入了一系列的庭院,以限制室内视角。这些庭院可以供儿童图书馆来开展一些活动。
大厅十分宽敞,可以用来举行展览和新书展,从这里开始,有楼梯或电梯直通顶层和最具有象征性的空间,即主要的图书区。
一层的休息区、图书馆员办公室、会议室和公共卫生间沿西南立面设置。
主要的图书区占据了其他分区,朝向西北、东北和东南。该房间经过精心设计,整个外围都可以接收太阳光线,这似乎与传统的接收北部光线的图书馆设计相冲突。建筑师将多种控制阳光的玻璃用作过滤器,目的有二:避免阳光的直接冲击,以及充当半透明幕,投影环境。房间分为两部分,一部分对用户开放,书架和多功能设备都位于这里;第二部分位于上层,光线充足,由两个窗格组成,里面的用大型的透镜玻璃板制成,外面的则采用丝网印刷玻璃,与白色的混凝土外墙找平。
在东北立面,一层较首层而言后移。第一个结构没有顶盖,形成了一个庭院。低层的房间采用同样的原则以阻隔视野。
交流模块位于两层的白色盒子顶端。空调单元位于屋顶,被白色混凝土板和水平网格隐藏起来。
|






























