苏州石路佳和商厦
简介:项目图片 设计作品介绍 项目地处苏州古城区中心地带金阊区石路步行街,区域位置优越。项目总建筑面积为32464㎡,其中地上建筑面积为30630.49㎡,地下建筑面积为1833.54㎡。原建筑外立面主要为面砖和玻璃幕墙,其材 ...
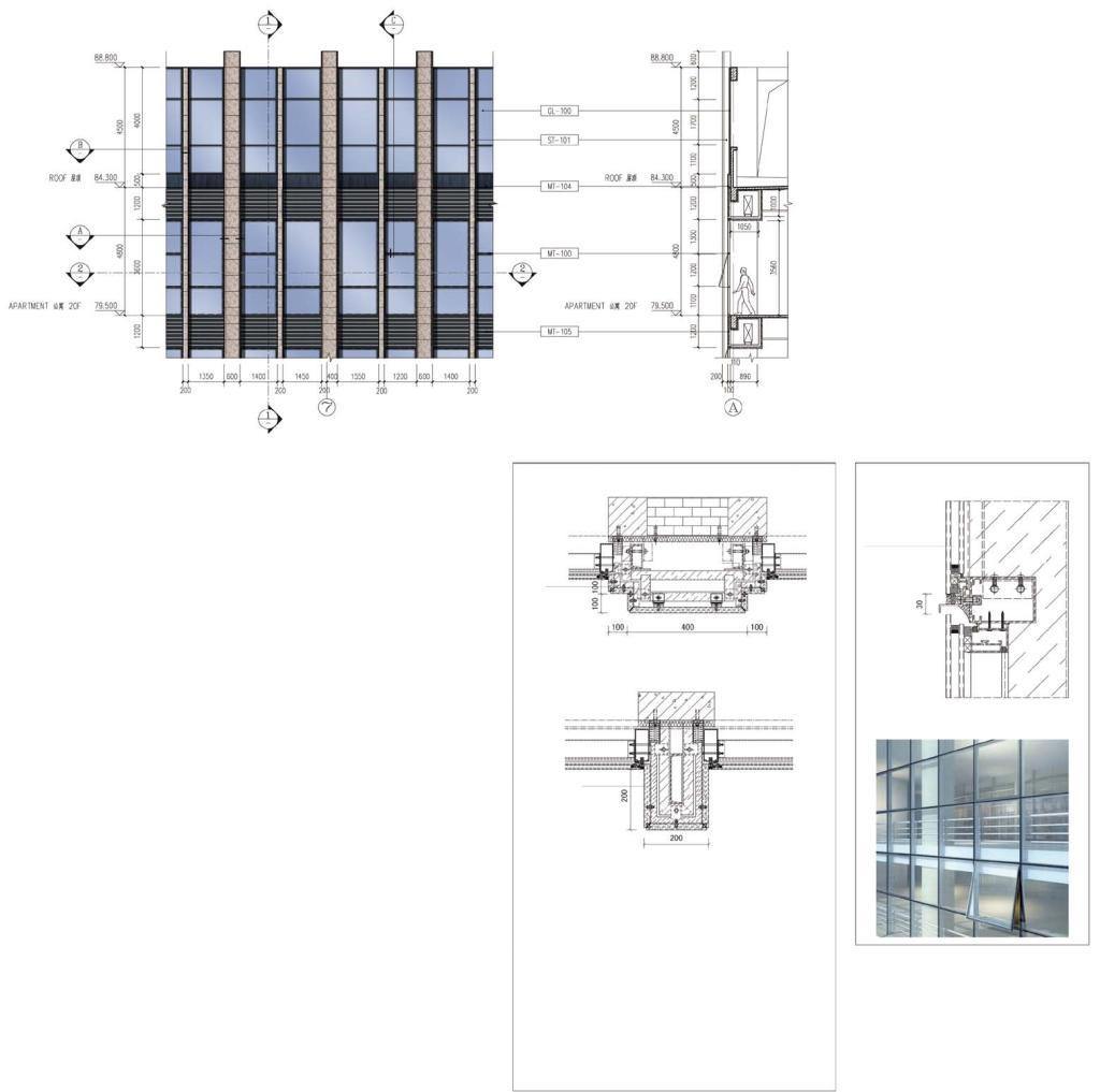
项目图片![]() ![]() ![]() ![]() ![]() ![]() ![]() 设计作品介绍项目地处苏州古城区中心地带金阊区石路步行街,区域位置优越。项目总建筑面积为32464㎡,其中地上建筑面积为30630.49㎡,地下建筑面积为1833.54㎡。原建筑外立面主要为面砖和玻璃幕墙,其材料已严重老旧,外立面造型早已不能满足石路步行街审美的需求。本次立面改造重在突出公建化、标志化的设计主题,体现苏州新时代的建筑风貌,强调三段式美学构图,尊贵大气,稳重挺拔。立面材料以暖灰色石材、深灰色玻璃、透明玻璃、深灰色金属板和金属百叶为主。设计手法上采用新古典的设计元素,裙房部分立面强调现代与古典的碰撞,采用新颖的装饰性玻璃幕墙并充分考虑广告位的设置,符合商业建筑的性格;塔楼部分通过竖向装饰构件突显建筑的挺拔感,强调虚实对比和材料质感色彩的搭配,亦能体现其高贵典雅的理性之美。 节点详图![]() ![]() ![]() ![]() ![]() ![]() |
上一篇:青岛城阳IMAGE时代中心
下一篇:常熟黄河路广场
已有 0 人参与
会员评论

















