2015米兰世博会罗马尼亚馆参赛作品
简介:项目名称:2015米兰世博会罗马尼亚馆参赛作品Competition Entry: Romanian Pavilion (Milan Expo 2015) 建筑师:Collective East建筑事务所 项目地点:意大利 米兰 项目面积:550㎡ 项目时间:2014年 ...
![]() 项目名称:2015米兰世博会罗马尼亚馆参赛作品Competition Entry: Romanian Pavilion (Milan Expo 2015) 建筑师:Collective East建筑事务所
项目地点:意大利 米兰
项目面积:550㎡
项目时间:2014年
摄影:Collective East Architects
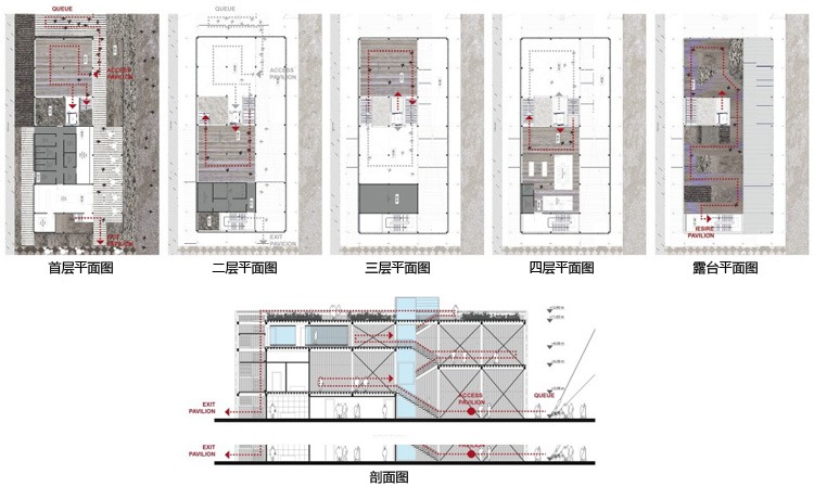
Collective East建筑事务所的作品在2015年米兰世博会罗马尼亚馆竞赛中排名第六,是一个“简单有力的地标”,主要关注罗马尼亚的农业历史。作为一个“富有吸引力的定位标志”,结构通过重复的传统罗马尼亚图案将展馆转化成为一个雕塑式体块,并彰显了强烈的民族特色。”远远看去,立面仿佛“内向且不能穿透”;但走近一点会发现,建筑开始展现内部环境,将人们期待从“珠宝博物馆”中看到的细节展现在人们面前。
内部环境被设定为一条“垂直路径”,重现了罗马尼亚文化遗产。观众的体验从对典型作物的概述性介绍开始,继而是肥沃的罗马尼亚土壤、传统的农业技术,最后是与仍热使用这些技术的人们进行交流。路径在屋顶平台上结束,游客们可以在这里直接接触到基本的罗马尼亚谷类作物。
|




















