汉堡泰斯多夫大街8号办公建筑
简介:项目名称:汉堡泰斯多夫大街8号办公建筑 建筑师:曼哈德冯格康和尼古劳斯格茨,福克玛西弗斯 项目负责人:扬施托尔特 扩初设计人员:Christian Dahle, Alexandra Heise, Wiebke Meyenburg, Kerstin Steinfat ...
![]() 项目名称:汉堡泰斯多夫大街8号办公建筑 建筑师:曼哈德·冯·格康和尼古劳斯·格茨,福克玛·西弗斯
项目负责人:扬·施托尔特
扩初设计人员:Christian Dahle, Alexandra Heise, Wiebke Meyenburg, Kerstin Steinfatt, Fabian Faerber
施工图设计人员:Nina Moelle, Tilmann Jarmer, Martina Klostermann, Wiebke Meyenburg, Steffen Lepiorz, Uli Rösler
DGNB 稽核员:Urs Wedekind
业主:Harm Müller-Spreer c/o Müller-Spreer AG
项目地点:德国
建设周期:2011年-2013年
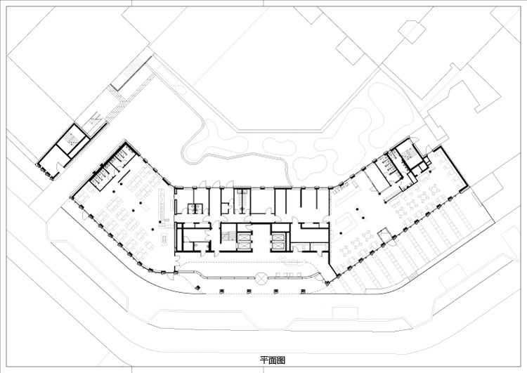
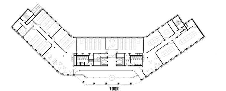
汉堡达姆门火车站附近的泰斯多夫大街新建办公大楼由冯•格康,玛格及合伙人建筑师事务所(gmp)设计,其满足最高节能要求,预计将获得DGNB(德国可持续建筑协会)的金级认证。大楼已经运营了一年。
这座七层高的新建筑的高度设计考虑了敏感的城市环境并以周边原有建筑为参照。因此,两座周边建筑的檐口高度受到重视并通过不同的楼层设计给予响应。在面向爱丽舍大酒店和上世纪初早期建筑一侧,建筑最高层略有缩进。位于中心位置的两层高柱廊定义了入口区。外立面表现了建筑的魅力,但同时克制而不张扬。流畅的弧线和凹凸有致富于变化的立面随着视角的移动而呈现多姿的形象,天然石材饰面的幕墙使建筑更和谐地融入于其周边的建筑群。
办公大楼的多样化窗设计与周边环境相呼应:一方面,两层高的窗子参照了酒店建筑的大尺寸立面,表现了高雅大气的风格,而另一方面,较小的窗子与上世纪初的早期建筑交相辉映。
两层高玻璃大厅构成大楼的敞亮入口。使用者和访客经入口大厅直接抵达中央电梯组。除此之外,大楼底层还设有员工食堂和一座大型餐厅。大楼中区设有大空间办公室、小组办公室和个人办公室,此外小型洽谈室和中小会议室补充完善了进深达16米的室内空间。
|
已有 0 人参与
会员评论





























