西门子中心(Siemens Center)
简介:项目名称:西门子中心(Siemens Center) 建筑师:曼哈德冯格康和尼古劳斯格茨,以及克劳斯伦茨 项目负责人:约翰奥特曼 业主:西门子(中国)有限公司 项目地点:中国,上海 建筑面积:45000㎡ 建 ...
![]() 项目名称:西门子中心(Siemens Center) 建筑师:曼哈德·冯·格康和尼古劳斯·格茨,以及克劳斯·伦茨
项目负责人:约翰·奥特曼
业主:西门子(中国)有限公司
项目地点:中国,上海
建筑面积:45000㎡
建设周期:2008年-2010年
设计竞赛:2006年,一等奖
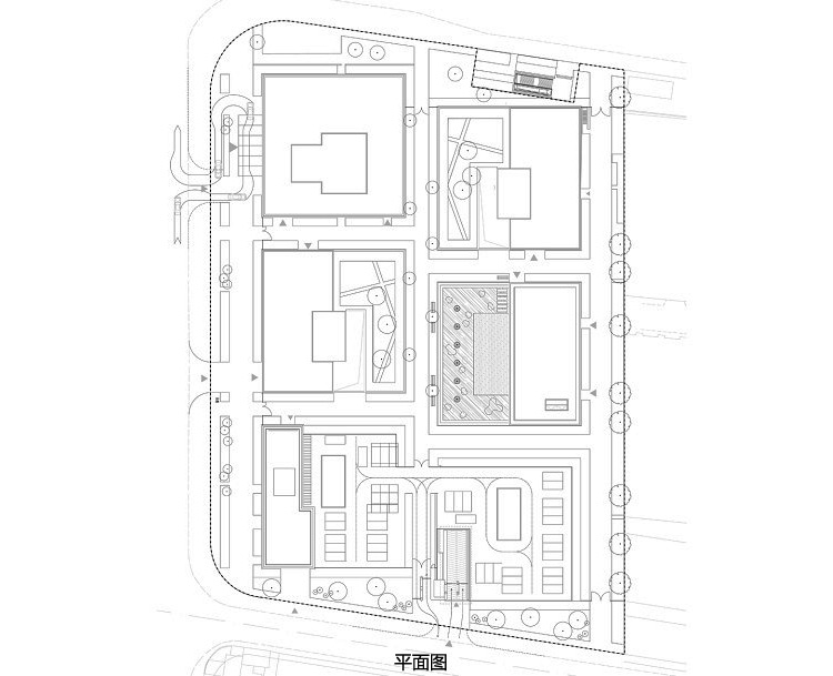
令人印象深刻的西门子总部位于上海杨浦区,以美国LEED绿色建筑金级认证标准设计建造,其在借鉴了城市传统的“里弄”格局的同时创造出一个具有时代特色,极富吸引力的现代社区。长方体和立方体建筑体块错落分布,由此产生丰富多变、趣味盎然的室外景观,小型广场可供人们休憩放松,精心规划的水景和绿地点缀其间。
感谢gmp将项目介绍和图片授权中国建筑报道网发行。
Appreciation towards gmp for providing the description and all photos .
版权声明:未经本站许可,任何网络平台都不得私自转载、链接、转贴或以其它方式使用本稿。违反上述声明者,本站必将追究其相关法律责任。
|
















