少年宫(Palace of Schoolchildren)
简介:项目名称:少年宫(Palace of Schoolchildren) 建筑师:Studio 44建筑事务所 项目地点:哈萨克斯坦 阿斯塔纳 项目面积:18 700㎡ 项目时间:2011年 摄影:Margarita Yawein 少年宫的设计有双重 ...
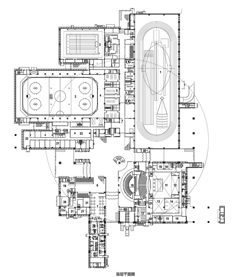
![]() 项目名称:少年宫(Palace of Schoolchildren) 建筑师:Studio 44建筑事务所
项目地点:哈萨克斯坦 阿斯塔纳
项目面积:18 700㎡
项目时间:2011年
摄影:Margarita Yawein
少年宫的设计有双重意义,既借鉴了至上主义构造,又体现了当地的住宅建筑传统。这一点从项目口号中可见一斑:“Khan Shangyrak。青少年的港湾”。
Shangyrak形似木制皇冠,突出的Kasakh蒙古包结构内的壁炉上方是中央开口。在该项目中,建筑师将Kazakh传统住宅中的这一圣礼元素重新解读为一个高8m、直径为156m的圆柱体。巨大的圆盘上的开口和天窗使自然光线进入建筑内部和中庭空间。它覆盖了阶梯式的矩形“盒体”,滑冰场、博物馆、射击场和剧院等功能因素分置于盒体结构中。
“盒体”用民族装饰品进行美化,逐个堆叠,令观赏者联想到毛毡手提箱(shabadan),是蒙古包内部一种传统的装饰品,显示了游牧民族的生活方式。圆盘空间容纳了多种多样的兴趣小组和部门,而建筑平台的绿色屋顶则被解读为散步和观景平台,在高楼林立的市中心模拟草原景观。
|



























