时尚前卫“马戏团”欢乐氛围美式餐厅
摘要: 摘要: 首先以连续的黑白图腾改造原有的铁件装潢,堆衬在铁件背后的是缤纷的斜口砖与明快的用餐氛围;吧台区块借用马戏团的欢乐印象,以灯泡串出活泼的HELLO字样作为收银及饮料吧台的迎宾印象。 ...
摘要:首先以连续的黑白图腾改造原有的铁件装潢,堆衬在铁件背后的是缤纷的斜口砖与明快的用餐氛围;吧台区块借用马戏团的欢乐印象,以灯泡串出活泼的HELLO字样作为收银及饮料吧台的迎宾印象。
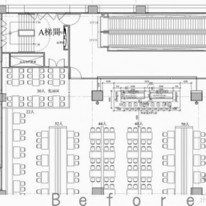
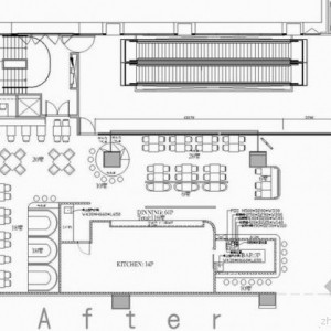
今天的推出的由禧德设计一改美式餐厅常用的西部牛仔风格,以“Open Kitchen”的概念尝试于百货公司中打造前卫欢乐的美式餐厅氛围。首先以连续的黑白图腾改造原有的铁件装潢,堆衬在铁件背后的是缤纷的斜口砖与明快的用餐氛围。
吧台区块借用马戏团的欢乐印象,以灯泡串出活泼的HELLO字样作为收银及饮料吧台的迎宾印象;用餐区的主墙面,以平面设计师手绘汉堡内馅拼绘输出图面铺陈,创造亲民的企业形象。
时尚前卫“马戏团”欢乐氛围美式餐厅 时尚前卫“马戏团”欢乐氛围美式餐厅 时尚前卫“马戏团”欢乐氛围美式餐厅 时尚前卫“马戏团”欢乐氛围美式餐厅 时尚前卫“马戏团”欢乐氛围美式餐厅 时尚前卫“马戏团”欢乐氛围美式餐厅 时尚前卫“马戏团”欢乐氛围美式餐厅 时尚前卫“马戏团”欢乐氛围美式餐厅 时尚前卫“马戏团”欢乐氛围美式餐厅 时尚前卫“马戏团”欢乐氛围美式餐厅 时尚前卫“马戏团”欢乐氛围美式餐厅 时尚前卫“马戏团”欢乐氛围美式餐厅 |




