小空间大改造 33平米小公寓“撞见”乡村风
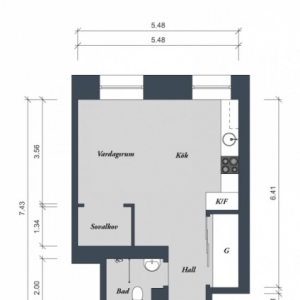
由瑞典房产公司Alvhem M?kleri & Interi?r 所提供的房屋中,空间只有33平米,但是在这小小的空间中,开放式的设计,不仅五脏俱全,还能免于小坪数的压迫感。可以清楚看见客厅、饭厅以及厨房三者并未做完整隔间,仅用一面未作满砖墙凸显这三个区块。
不仅如此,连隐私性较重的卧房也没有刻意隔出来,而是将床摆放在隐秘性较高的角落,并同样以未坐满的墙分出卧室。这样的手法不仅有划分区域的功能,更能兼顾到整体空间舒适度。
小空间大装修 33平米小公寓“撞见”乡村风 小空间大装修 33平米小公寓“撞见”乡村风 小空间大装修 33平米小公寓“撞见”乡村风 小空间大装修 33平米小公寓“撞见”乡村风 小空间大装修 33平米小公寓“撞见”乡村风 小空间大装修 33平米小公寓“撞见”乡村风 小空间大装修 33平米小公寓“撞见”乡村风 小空间大装修 33平米小公寓“撞见”乡村风 小空间大装修 33平米小公寓“撞见”乡村风 小空间大装修 33平米小公寓“撞见”乡村风 小空间大装修 33平米小公寓“撞见”乡村风 小空间大装修 33平米小公寓“撞见”乡村风 小空间大装修 33平米小公寓“撞见”乡村风 小空间大装修 33平米小公寓“撞见”乡村风 小空间大装修 33平米小公寓“撞见”乡村风 小空间大装修 33平米小公寓“撞见”乡村风 小空间大装修 33平米小公寓“撞见”乡村风 小空间大装修 33平米小公寓“撞见”乡村风 小空间大装修 33平米小公寓“撞见”乡村风 小空间大装修 33平米小公寓“撞见”乡村风 小空间大装修 33平米小公寓“撞见”乡村风 小空间大装修 33平米小公寓“撞见”乡村风 小空间大装修 33平米小公寓“撞见”乡村风 小空间大装修 33平米小公寓“撞见”乡村风 小空间大装修 33平米小公寓“撞见”乡村风 小空间大装修 33平米小公寓“撞见”乡村风 |




