蒙特勒伊剧院(Theater in Montreuil)
简介:项目名称:蒙特勒伊剧院(Theater in Montreuil) 建筑师:Dominique Coulon Architecte 项目建筑师:Sarah Brebbia, Arnaud Eloudyi, Olivier Nicollas 项目地点:法国,蒙特勒伊 项目面积:2,600㎡ 摄 ...
![]() 项目名称:蒙特勒伊剧院(Theater in Montreuil) 建筑师:Dominique Coulon Architecte
项目建筑师:Sarah Brebbia, Arnaud Eloudyi, Olivier Nicollas
项目地点:法国,蒙特勒伊
项目面积:2,600㎡
摄影:Jean Marie Monthiers
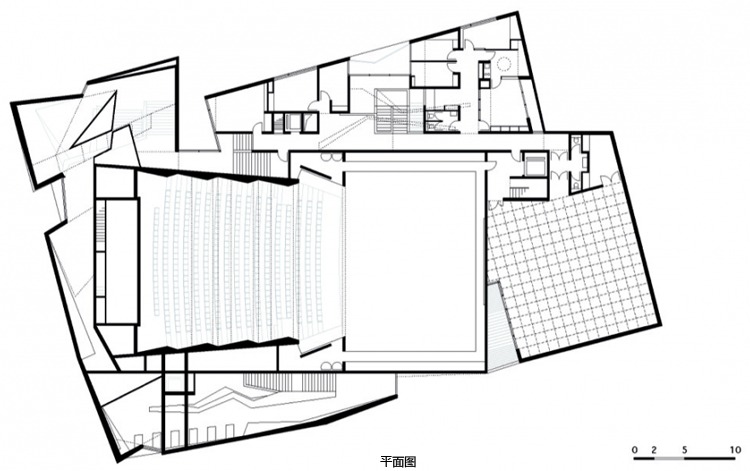
入口大厅对参观的人流进行有效的组织。
-接待处、问询处和入口位于礼堂的下方。
该空间旨在通过公众的参与达到提升自我的目的:
-首先,建筑是开放的,身在其中的人可以看见于日后竣工的Gernica广场。你可以看到以通向酒吧的楼梯为象征的连续通道。
-其次,建筑也是垂直布局的,就像是设置在我身后的非同寻常的垂直楼梯。
庭院将日光引入内部空间,并通过三角形和其他形状的玻璃镶板平衡了建筑空间的配置。
通过在一层使用葡萄牙铺地材料,建筑师在室外和室内空间之间创造了一种连续性。这座红色的门厅就是我们即将开始的发现之旅的通道的出发点,这条通道富于表现力。
建筑的楼梯非常有特色,在攀爬的过程中,你就会体验到色彩的变化。这与悬吊在小舞台上方(用于小型演出)富有特色的体量有一定的关系。拾级而上,我们逐渐感受到氛围的变化。进入房间的重要通道就是这个路口。
墙体和铺地材料呈现出色彩的渐变效果,建筑体量间有一定的间隔,以提升视线的通透性。现在举办的摄影展展出的是韦威视觉艺术学院的作品。
酒吧的造型使得设计师可以一种特殊的动态方式对其进行开发。悬吊的桌子带有金色的板材覆层,以自身的静态特质与酒吧的体量相呼应。
房间将观众与舞台和艺术家紧密地联系在一起。舞台上方的格栅悬挂在一个高点上,这个位置的高度是我们所看到的窗户的高度的二倍。虽然还是处在该项目的通道上,但是从红到黑的颜色过渡消散了,这样人的注意力就会集中在舞台上。
混凝土墙体使房间的现代感十足。墙体倾斜的“褶皱”保证了室内具有极佳的声学效果。墙体附着在技术人行桥上,这样一来,墙体就使人有安全感。
乐池中现在有三排座椅。(通道通向艺术家的休息室)一系列彩灯使天花板充满生气。天花板界定了休息室的范围,为艺术家在进入舞台前的准备工作提供了庄重肃穆的氛围。
更衣室为使用者进行准备工作提供了舒适简单的空间。更衣室的装饰采用了奢华的材料,如实心木材和金色板材覆层。在楼梯的前面穿行)这部楼梯通向行政区、其他更衣室、技术设备间和我们即将看到的艺术家工作室。楼梯看上去充满了活力,其特色是带有一些裂缝,可以为观众提供不同的视角。(到达拱顶的下方)去往工作室的必经之路就是这条通道,它的主要特征就是这个拱顶。它的颜色和光线处理凸显了自身的华丽特质,并使空间具有无限延伸的效果。
艺术家工作室:这个房间的体量很简单,可以被各种复制。阳台可以随意进出,这样一来,使用者就可以长时间在工作室内驻足。
文字来源:archgo.com
|
已有 0 人参与
会员评论




























