王澍新作 中国美术学院象山校区专家接待中心
简介:摘要: 这是王澍最新作品中国美术学院象山校区专家接待中心。项目总面积7500平方米,建筑面积6200平方米。 从象山向南俯瞰 瓦 山 建筑设计: 王澍 项目面积: 7500㎡ 建筑面积: 6200㎡ ...
|
摘要:这是王澍最新作品中国美术学院象山校区专家接待中心。项目总面积7500平方米,建筑面积6200平方米。
从象山向南俯瞰瓦山
建筑设计:王澍
总平面
隔岸望瓦山中段
隔岸望瓦山西尾
从瓦山顶上山道远望
从瓦山顶上山道回望象山
隔岸望瓦山腹内
一层平面
二层平面
瓦山中小憩处
瓦山北侧
瓦山北侧局部
瓦山西尾休憩处
瓦山中腹木拱洞
瓦山西尾木构架
从象山山腰俯瞰瓦山西尾
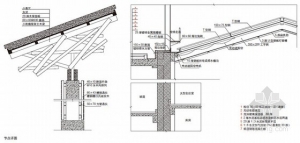
节点详图
屋顶木屋架结构平面
瓦山中腹跌水池
瓦山中腹院落回廊
瓦山西尾内部的洞
瓦山缝隙 |
已有 0 人参与
会员评论
相关分类
最热文章
最新文章









