CSC住宅(CSC House)
摘要: 项目名称:CSC住宅(CSC House) 建筑师: MMX建筑事务所 项目地点:墨西哥,新莱昂州 项目面积:150㎡ 项目时间:2011年 摄影:MMX建筑事务所公关部 已有建筑基地的布局很大程度上已经构建了C ...
![]() 项目名称:CSC住宅(CSC House) 建筑师: MMX建筑事务所
项目地点:墨西哥,新莱昂州
项目面积:150㎡
项目时间:2011年
摄影:MMX建筑事务所公关部
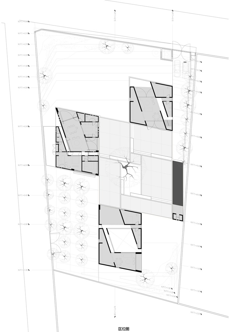
已有建筑基地的布局很大程度上已经构建了CSC住宅的基本呈现方式。最重要的一点是场地中央有一棵树木,住宅的布局方式与建筑体量的呈现角度都要以此为依据。室外空间也以树为轴分成不同大小的几个活动区域。场地的划分体现出两个不同方向上区域分割的布局方式:其中一个方向,斜坡被分割成几个不同水平高度的平台;另外一个方向则是三个房间单元的区域。房间根据阳光的照射角度和周围风景进行布局,创造出宜居的设计。人字形屋顶下方的住宅采用了对传统住宅楼再创新的建造方式,使其看上去更具活力。
|
已有 0 人参与
会员评论

















