理查德•迈耶设计的哥伦比亚住宅楼项目方案
简介:摘要: “vitrvm”, 理查德•迈耶& Partners在哥伦比的第一个项目,位于波哥大的两个13层高的住宅楼。“vitrvm”共有36个公寓,坐落在septima大街上,邻近有哥伦比亚最大的神学院“塞米纳里奥”。 ...
|
摘要:“vitrvm”, 理查德•迈耶& Partners在哥伦比的第一个项目,位于波哥大的两个13层高的住宅楼。“vitrvm”共有36个公寓,坐落在septima大街上,邻近有哥伦比亚最大的神学院“塞米纳里奥”。
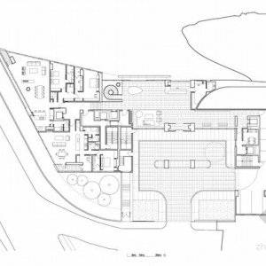
理查德•迈耶设计的哥伦比亚住宅楼项目方案 建筑设计: 理查德•迈耶+ dukho yeon 建筑面积: 14000平方米 项目地址: 哥伦比亚,波哥大 图片来源: 理查德•迈耶& Partners 场地的景观包括从周围的山脉以及著名chico公园引进的绿色植物。建筑是个体的形式,但在他们的关系有很多相似之处。塔1的外观设计为折叠的平面和雕刻表面,以及更知名的其棱镜的形状。每层有两个公寓,各有四间卧室,房间的组织安排能够最大化的将日光引入室内。塔2相对更像矩形,由两个固体平面分布,每层有一个公寓。十个大的单位公寓有三间卧室和一个额外的工作室。这些空间朝向北,完全暴露在景历史神学院和遥远chingaza国家公园美景下。“vitrvm的室内装饰有丰富的材料质地和颜色。石头和木材和泥土色调的光滑纹理的表面等天然石材,将与建筑外部的色白灰、玻璃形成反差。”理查德•迈耶说。大堂位于两个大楼二楼连接处,而一楼的这个位置含有一个多用途的房间、室内游泳池和健身中心。
理查德•迈耶设计的哥伦比亚住宅楼项目方案
理查德•迈耶设计的哥伦比亚住宅楼项目方案
理查德•迈耶设计的哥伦比亚住宅楼项目方案
理查德•迈耶设计的哥伦比亚住宅楼项目方案
理查德•迈耶设计的哥伦比亚住宅楼项目方案
理查德•迈耶设计的哥伦比亚住宅楼项目方案
理查德•迈耶设计的哥伦比亚住宅楼项目方案
理查德•迈耶设计的哥伦比亚住宅楼项目方案
理查德•迈耶设计的哥伦比亚住宅楼项目方案
理查德•迈耶设计的哥伦比亚住宅楼项目方案
理查德•迈耶设计的哥伦比亚住宅楼项目方案
理查德•迈耶设计的哥伦比亚住宅楼项目方案
理查德•迈耶设计的哥伦比亚住宅楼项目方案
理查德•迈耶设计的哥伦比亚住宅楼项目方案
理查德•迈耶设计的哥伦比亚住宅楼项目方案
理查德•迈耶设计的哥伦比亚住宅楼项目方案
理查德•迈耶设计的哥伦比亚住宅楼项目方案
理查德•迈耶设计的哥伦比亚住宅楼项目方案
理查德•迈耶设计的哥伦比亚住宅楼项目方案
理查德•迈耶设计的哥伦比亚住宅楼项目方案
理查德•迈耶设计的哥伦比亚住宅楼项目方案 译者:筑龙网 Tina |
已有 0 人参与
会员评论
相关分类
最热文章
最新文章









