SO-IL设计的荷兰阿纳姆ArtA文化中心
|
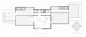
摘要:SO-IL设计的荷兰阿纳姆ArtA文化中心,SO-IL透露 阿纳姆“ArtA”文化中心设计方案。与architectuurstudio HH和ABT共同设计,SO-IL将把阿纳姆博物馆与该地区的电影剧院联合起来,作为连接城市中心与相邻的莱茵河。
SO-IL设计的荷兰阿纳姆ArtA文化中心
建筑设计:SO – IL
他们主要专注于三个想法——城市形式、集体结构和反射空间——一个能够适应未来需要的独特的公共建筑。建筑的体量设计是依据周围的街区结构,允许“ArtA”直接与周围街区融合。不同比例大小的单元体量实现了一个明确的组织和强有力的城市形式。邻近的街道变成一个广场,刺激发展,而抽象形状的文化中心给人一种神秘的印象,吸引游客。一个超大的楼梯引领游客到建筑的中央,建筑的外观有一个缺口,很巧妙地在提供私密空间的同时又展现阿纳姆的壮丽风景。灵活的体块文化体现文化的同时,建立反映更私密的空间。开放和灵活的提案包括大量关于日光空间的细节、高度和比例,为各种形式的视觉艺术、设计和电影而服务。
SO-IL设计的荷兰阿纳姆ArtA文化中心
SO-IL设计的荷兰阿纳姆ArtA文化中心
SO-IL设计的荷兰阿纳姆ArtA文化中心
SO-IL设计的荷兰阿纳姆ArtA文化中心
SO-IL设计的荷兰阿纳姆ArtA文化中心
SO-IL设计的荷兰阿纳姆ArtA文化中心
SO-IL设计的荷兰阿纳姆ArtA文化中心
SO-IL设计的荷兰阿纳姆ArtA文化中心
SO-IL设计的荷兰阿纳姆ArtA文化中心
SO-IL设计的荷兰阿纳姆ArtA文化中心
SO-IL设计的荷兰阿纳姆ArtA文化中心
SO-IL设计的荷兰阿纳姆ArtA文化中心
SO-IL设计的荷兰阿纳姆ArtA文化中心
SO-IL设计的荷兰阿纳姆ArtA文化中心
SO-IL设计的荷兰阿纳姆ArtA文化中心
SO-IL设计的荷兰阿纳姆ArtA文化中心
SO-IL设计的荷兰阿纳姆ArtA文化中心
SO-IL设计的荷兰阿纳姆ArtA文化中心
SO-IL设计的荷兰阿纳姆ArtA文化中心
译者:筑龙网 Tina |
会员评论









