kwk promes设计的波兰pieniny山脉酒店
|
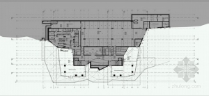
摘要:波兰当地设计公司kwk promes在pieniny山脉上设计酒店,灵感来自于场地周围的房屋。石头基座、尖屋顶和木强都是用作农业储蓄建筑的元素。
kwk promes设计的波兰pieniny山脉酒店
建筑设计: kwk promes
业主希望酒店建在czorsztyn湖边,能够俯瞰湖面,所以建筑师就将以上几个这个区域内常见的元素用在了建筑上,当然石头基座用混凝土代替嵌入到山上。包含在这个坚实的基础管理、服务和社会功能的酒店由两个三角形的体块组成——高出山腰的小屋顶上铺着木砖。建筑的一部分通过悬臂伸向czorsztyn湖,让客人能在客房就能看到美丽的湖面景色。在两座相对的体块中间是一块平地,地面铺着透明的玻璃面板,更加溶于周围的景色。
kwk promes设计的波兰pieniny山脉酒店
kwk promes设计的波兰pieniny山脉酒店
kwk promes设计的波兰pieniny山脉酒店
kwk promes设计的波兰pieniny山脉酒店
kwk promes设计的波兰pieniny山脉酒店
kwk promes设计的波兰pieniny山脉酒店
kwk promes设计的波兰pieniny山脉酒店
kwk promes设计的波兰pieniny山脉酒店
kwk promes设计的波兰pieniny山脉酒店
kwk promes设计的波兰pieniny山脉酒店
kwk promes设计的波兰pieniny山脉酒店
kwk promes设计的波兰pieniny山脉酒店
kwk promes设计的波兰pieniny山脉酒店
译者:筑龙网 Tina |
会员评论









