paolo venturella为2015年世博会意大利国家馆设计的植物立面
|
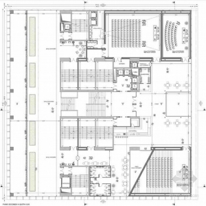
摘要:paolo venturella为2015年世博会意大利国家馆设计的绿色植物立面融合了食物和可更新能源。通过在建筑中种植食物是为了使得绿色覆盖整个室外空间,能源概念则是用于立面的设计,这使得建筑的整个体量成为了一大特色。
paolo venturella为2015年世博会意大利国家馆设计的植物立面
建筑设计:paolo venturella
温室被安置于地块的南侧,展览部分则位于北侧。整个国家馆被一系列可以动的空间联系起来,朝南形成了一种台阶的效果。它们围绕着走廊区域,被用于种植植物和蔬菜,形成了自然的通风和采光。每个不同的结构都有其专属的功能。温室能够整年控制室内气候,光电板的是建筑的细节设计,融合了可更新能源概念使得建筑更有特色,它们分布于建筑各个角落,使得热能能够维持一整天。
paolo venturella为2015年世博会意大利国家馆设计的植物立面
paolo venturella为2015年世博会意大利国家馆设计的植物立面
paolo venturella为2015世博会意大利国家馆设计植物立面
paolo venturella为2015年世博会意大利国家馆设计的植物立面
paolo venturella为2015年世博会意大利国家馆设计的植物立面
paolo venturella为2015年世博会意大利国家馆设计的植物立面
paolo venturella为2015年世博会意大利国家馆设计的植物立面
paolo venturella为2015年世博会意大利国家馆设计的植物立面
paolo venturella为2015年世博会意大利国家馆设计的植物立面
paolo venturella为2015年世博会意大利国家馆设计的植物立面
paolo venturella为2015年世博会意大利国家馆设计的植物立面
翻译:筑龙网 DING |
会员评论









