Hintonburg Six住宅(The Hintonburg Six)
摘要: 项目名称:Hintonburg Six住宅(The Hintonburg Six) 建筑师:Colizza Bruni Architecture Inc.建筑事务所 项目地点:加拿大,渥太华 项目面积:600.0㎡ 项目时间:2012年 摄影:Peter Fritz ...
![]() 项目名称:Hintonburg Six住宅(The Hintonburg Six) 建筑师:Colizza Bruni Architecture Inc.建筑事务所
项目地点:加拿大,渥太华
项目面积:600.0㎡
项目时间:2012年
摄影:Peter Fritz
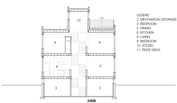
Hintonburg Six住宅项目是对老住宅改造的一个经典范例,如何使老街区内的古老房屋在新时代下运用当代的建筑方法呈现出崭新的面貌是团队需要尽力完成的任务。另外,Hintonburg Six住宅是对城市环境、建筑项目于城市景观三者和谐共荣的一次建筑设计。
Hintonburg镇建立于1893年并在1907年并入渥太华区,同时也是渥太华地区第一个“郊外工业区”,由于相对廉价的房屋价格以及相对便利的城际交通使得这里涌入了大量的法国和英国移民。这里的街道相对狭窄,坐落在两旁的建筑相隔距离非常小,同时住宅都是2层楼的低矮建筑。改造后的房屋街区住宅有了很大的变化:4栋独立式住宅和一个半独立式住宅代替了原来600平方米的的单一独立式住宅以及车库。现在,原本两层的住宅附加了一个半层的空间,并且在这个半层的同一水平位置增加了屋顶小花园,外幕墙为金属立面。
|
已有 0 人参与
会员评论



















