Fray León住宅(Fray León Building)
摘要: 项目名称:Fray Len住宅(Fray Len Building) 建筑师:Jorge Figueroa + Asociados建筑事务所 项目地点:智利,圣地亚哥 摄影:Pablo Blanco Fray Len住宅位于智利圣地亚哥拉斯孔德斯区的圣达米安 ...
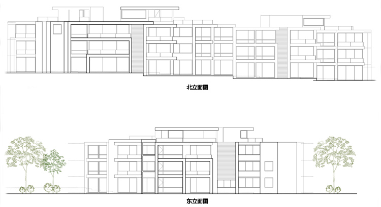
![]() 项目名称:Fray León住宅(Fray León Building) 建筑师:Jorge Figueroa + Asociados建筑事务所
项目地点:智利,圣地亚哥
摄影:Pablo Blanco
Fray León住宅位于智利圣地亚哥拉斯孔德斯区的圣达米安,这一住宅包括9各住宅单元。建筑师期望营造出一个个单一、独特的小建筑单元并通过拼接的方式将其整合在一个建筑体量内,虽然外观上将其整合至一个大的建筑体量中,但每一个单元并没有重复的模板式设计,而是各具特色。墙面的设计将整个空间营造出梦幻的雕塑感。光线透过空隙直入到室内,并且可以一直延伸到地下室,从而也一般意义上的住宅单元形成了鲜明的对比。同样的设计也出现在楼梯与电梯之间的公共活动区域,扩展了室内庭院与垂直花园的范围。另外,位于一层的住宅单元正好面向广场前的私人花园,而三层的住户这可以直接穿过楼梯而到达屋顶露台。
|
已有 0 人参与
会员评论

























