维也纳Doppio酒店及办公综合楼(Doppio Hotel and Offices)
简介:项目名称:维也纳Doppio酒店及办公综合楼(Doppio Hotel and Offices) 建筑师:ArchitekturConsult建筑事务所 项目地点:奥地利,维也纳,Rennweg 99 建筑面积:134,000sqm 项目时间:2012年 摄影:F ...
![]() 项目名称:维也纳Doppio酒店及办公综合楼(Doppio Hotel and Offices) 建筑师:ArchitekturConsult建筑事务所
项目地点:奥地利,维也纳,Rennweg 99
建筑面积:134,000sqm
项目时间:2012年
摄影:Franz Ebner
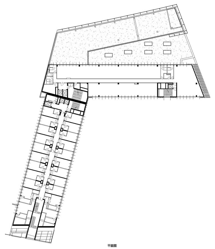
维也纳Doppio酒店及办公综合楼总建筑面积13.4万平方米,整个项目采用T-Mobile系统。整个综合楼除办公区功能外,同时还提供一系列基础设施服务如商店、餐馆、育儿中心和医疗中心。这些多功能区域的组合,加上连接到街道和桥梁等建筑物中间,使位于中心东西向的办公楼成为一个独立的景观。第一,规模最大,一步转换,St. Marx区的重组和利用已成功地采取与中心的建设。酒店和写字楼也是独立而建的。两个建筑物邻接成L形,具有独立的设计-甚至入口和供应部门也是相互独立的。
四星级酒店设有155个房间,从中央走廊成东西走向。主入口经由前院可以直接到达。宽敞的大厅是一个很长的柜台,可以作为酒吧,餐厅与会议室直接连接。餐厅的前面是一个绿色区域,使其与路边区域之间形成了距离,紧急楼梯位于大楼两侧,同时也是一个缓冲区。每栋楼的不同楼层是为个人使用而设计的,并配有大、小厨房和厕所设施。所有可以想象到的变化是可能的小型办事处多达1,200平方米的楼面面积。这个建筑的特别之处是,除了具有众多不同功能空间特质,它采用了生态建设机组冷却系统取代昂贵的空调系统,从而最大限度地节省能源成本。
|
已有 0 人参与
会员评论





































