热搜
活动
交友
discuz
建筑业界
首页
Portal
建筑人物
社区
BBS
建筑作品
社群
Group
建筑活动
会员日志
Blog
建筑培训
会员相册
Album
设为首页
收藏本站
建筑论坛
建筑圈子
QQ登陆
立即注册
登录
建筑时空
›
首页
›
建筑作品
›
新建筑
›
查看内容
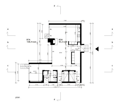
瑞典守林人小屋
2007-10-3 00:00
|
发布者:
ccbuild
|
查看:
271
|
评论: 0
|
来自: 网络
简介:
Arkitektur杂志获奖者Strata Arkitektur 的“现代守林人小屋”
Arkitektur杂志获奖者Strata Arkitektur 的“现代守林人小屋”
收藏
邀请
路过
雷人
握手
鲜花
鸡蛋
相关阅读
•
德国Frankfurt货运中心
•
智利C.D.U.C会所
•
英国Willow剧院
•
波兰warsaw商务花园酒店
•
比利时Faes别墅
•
智利Gatica住宅
•
智利Ayen牙科诊所
•
【建筑】西班牙会议中心
相关分类
住宅建筑
宾馆酒店
科研建筑
工业建筑
商业建筑
医疗建筑
交通建筑
体育建筑
文化建筑
教育建筑
办公建筑
会展建筑
规划设计
室内设计
景观设计
智能工程
建筑保护
新建筑
别墅作品
博物馆作品
更新改造
返回顶部