|
摘要:设计师Tim Lai 和Brad Steinmetz为皇家威尔士音乐戏剧学院,设计了它的舞台,可以提供舞蹈、戏剧和歌剧演出。

Tim Lai 和Brad Steinmetz设计的皇家威尔士音乐戏剧学院舞台
建筑设计:Tim Lai 和Brad Steinmetz建筑师 建筑时间:2013 建筑地点:英国 图片来源:Matthew Carbone
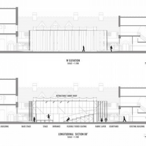
设计师Tim Lai 和Brad Steinmetz为皇家威尔士音乐戏剧学院,设计了它的舞台,可以提供舞蹈、戏剧和歌剧演出。整个舞台可以容纳150人,所有的功能都很齐全。所有的材料都是现成的,可以被保存起来,随时使用。 该设计的灵感来自园艺羊毛,这种材料质量轻、呈半透明状,可以回收当地的现成材料。多层次的通风面料挂在天花板上,结构是模块化的脚手架。这种通风织物的形状和运动让人们想起来柳树摇曳的树枝。舞台内部有长椅可供人们休闲观赏。到了晚上,这些“柳叶”还闪闪发光。

Tim Lai 和Brad Steinmetz设计的皇家威尔士音乐戏剧学院舞台

Tim Lai 和Brad Steinmetz设计的皇家威尔士音乐戏剧学院舞台

Tim Lai 和Brad Steinmetz设计的皇家威尔士音乐戏剧学院舞台

Tim Lai 和Brad Steinmetz设计的皇家威尔士音乐戏剧学院舞台

Tim Lai 和Brad Steinmetz设计的皇家威尔士音乐戏剧学院舞台

Tim Lai 和Brad Steinmetz设计的皇家威尔士音乐戏剧学院舞台

Tim Lai 和Brad Steinmetz设计的皇家威尔士音乐戏剧学院舞台

Tim Lai 和Brad Steinmetz设计的皇家威尔士音乐戏剧学院舞台

Tim Lai 和Brad Steinmetz设计的皇家威尔士音乐戏剧学院舞台

Tim Lai 和Brad Steinmetz设计的皇家威尔士音乐戏剧学院舞台

Tim Lai 和Brad Steinmetz设计的皇家威尔士音乐戏剧学院舞台

Tim Lai 和Brad Steinmetz设计的皇家威尔士音乐戏剧学院舞台

Tim Lai 和Brad Steinmetz设计的皇家威尔士音乐戏剧学院舞台

Tim Lai 和Brad Steinmetz设计的皇家威尔士音乐戏剧学院舞台

Tim Lai 和Brad Steinmetz设计的皇家威尔士音乐戏剧学院舞台
译者:筑龙网 毛毛
|