3XN在挪威设计“拱门”文化中心(组图)
摘要: 在挪威南部一座名为Mandal的小城里,丹麦的3XN事务所设计了一座名为“拱门”(the Arch)的艺术中心。这座小城里满是白色的木制房屋,风景如画,非常幽静。“拱门”艺术中心包含了剧院、电影院、音乐厅、图书馆、美 ...
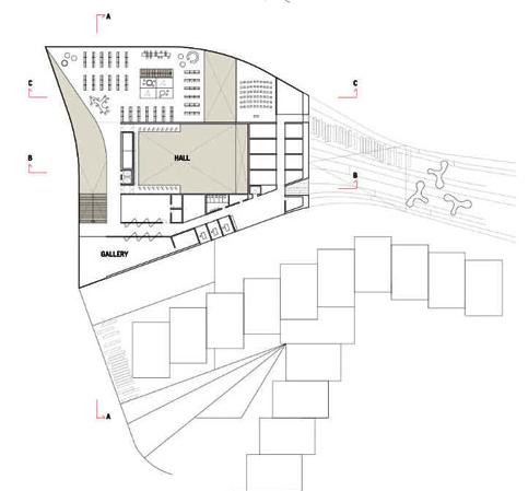
在挪威南部一座名为Mandal的小城里,丹麦的3XN事务所设计了一座名为“拱门”(the Arch)的艺术中心。这座小城里满是白色的木制房屋,风景如画,非常幽静。“拱门”艺术中心包含了剧院、电影院、音乐厅、图书馆、美术馆和咖啡馆。它也有着白色的光滑表面,坐落在沙滩的一角。 文化中心的背景一边是枝繁叶茂的树林,另一边是扬帆起航的船只,看上去如同在波浪和山石间流淌。场地原先是工业区,改造后变成线条柔和优雅的文化建筑,这也见证了Mandal城的不断发展。 几周前,这座文化中心已经向公众开放。白色的外墙如同Mandal诸多的白色木房屋一样,只不过大幅的玻璃将充足的日光投射到内部空间。清晨浓雾笼罩在“拱顶”艺术中心,光线也愈发变得朦胧起来,建筑显得更为“云山雾罩”。 由于大量运用玻璃,艺术中心内的活动是清晰可见的,将人们的目光吸引过来。朝南的户外区域充满了吸引力,也能让人欣赏到河流的景色。这样一来,这里成为居民们乐意前往的休闲地。 目前,连接艺术中心和市区的跨河桥梁正在建造中。桥梁也是3XN事务所设计的,后期还将为“拱顶”艺术中心建造绿色屋顶。 (责任编辑:水晶) |
已有 0 人参与
会员评论












